45°倾斜楼梯,让这个240平的别墅更添艺术气质
户型别墅
面积240m²
花费50万以上
位置重庆市
风格 现代
前言
既要闪闪亮亮,也要冷酷到底,既要干净利落,也要尊重原有的结构框架,好的设计就是尊重原本房屋的一切。
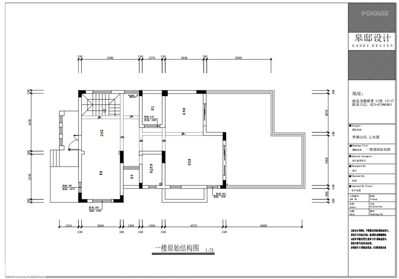
· 户型图

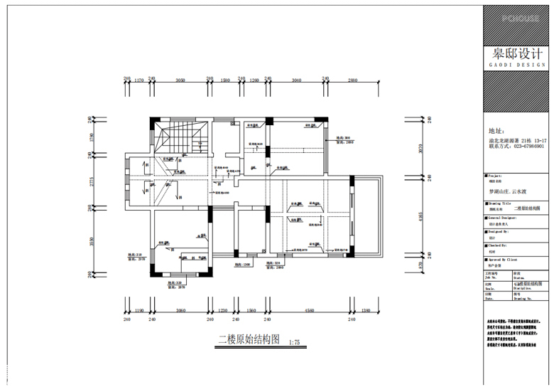
这个户型是一个两层楼的叠上户型,面积240平米,板式结构,层高很高,所以通风采光很好,不但有15平米的入户花园,还有露天的30平米的后花园。层高也很优秀,一楼层高3.5米,二楼层高最矮的地方也有3.8米。

问题是:1.进门正对餐厅,显得进门很局促,两边还有楼梯和厨房墙体的压迫。
2.楼梯在一个狭窄的地方,显得很拥挤且小气。
3.厨房到餐厅,必须经过一个大概3米的过道才能到达目的地
4.客厅和餐厅虽然在一起,但是由于尺寸的原因,客厅的沙发会直接挡在正对三米过道的地方,隐私性和开阔性得到了最大的制约
5.二楼的主要问题在于,儿童房和主卧的储物空间不是很多
所以在征求业主意见后,设计师将一间客房变成了衣帽间,将原本的小储藏间纳进了儿童房,增加一个独立衣帽间的功能


· 玄关

入口就能看到这个45°的倾斜楼梯,造型是用木材做的,梯步是用的防滑类型的石材,带有纹理感很有艺术感。

· 客厅

为了耐看,客厅墙面和地面的颜色都偏向水泥灰,因为这种不容易看烦,而且永远不会过时
水晶吊灯也用的比较经典的款式
小茶几更是简洁,黑色又看上去很有质感,上面小的那一截金属色的倒圆锥形特别有设计感


业主表示还是希望客厅是一家人放松在一起相聚的地方,所以沙发的舒适性是一定要保证的
传统的妃位那种沙发不适合这里,太占地方,所以用这个长到可以躺的丝绒沙发代替,湖蓝色很亮眼,又有安静的感觉



· 厨房

女主人是个美食达人,超大的岛台和西厨能让她尽情发挥~ 西厨橱柜的颜色也很特别,是个拼色系列
浅灰色显得很高级,但如果全部用浅灰色又会比较偏冷淡风,所以加入了墨绿色的元素,和谐不觉突兀 ,西厨旁边进去就是封闭式中厨了,中餐的爆炒神马的毫无压力




这壁绿色的墙是不是超特别的,这是为了和外面的西厨有所呼应~
· 餐厅

餐厅和客厅之间有两个承重墙不能打,岛台不能做在厨房门外的时候业主有些郁闷,设计师最有想出了缩小中厨,在两个承重墙之间做个超大岛台,然后将西厨和中厨彻底分开,这样看感觉很大气 。


餐厅的背景墙设计师经过反复考虑,最后决定就挂一副大的装饰画,不会显得冗杂,而且选的是这种给人沉静感觉的,无形中又添了些高雅的艺术感,这个地板,采用的人字拼,单调的地面产生了立体感,而且是用的不同色泽的地板搭配,很有层次感



· 卧室

主卧的屋顶也是这种,最大限度保留了原始坡屋顶和梁,稍加处理便又一个与众不同的空间,精致又冷峻


床头柜都是一个粉色,一个灰色~满满都是细节



· 儿童房

儿童房用的蓝色系,因为孩子喜欢蓝色,床头板用的色彩十足的,模仿调色盘那种感觉的,很活泼,和其他房间一样,儿童房也有大大的玻璃窗,清晨的阳光照进来就很舒服




· 衣帽间

主卧旁边就是衣帽间,两边整齐的衣柜,配上宽大的梳妆台,能满足女主人对储物空间的要求


· 走廊

二楼上来是休息区,更多的保留原始建筑的美,坡屋顶和对称的梁,也是这个房子特别的地方吧




· 其他

一楼的卫生间是做了干湿分区的,镜子是智能的,镜灯就很亮,化妆什么的都毫无压力

更多推荐
在线咨询
目录
户型图
玄关
客厅
厨房
餐厅
卧室
儿童房
衣帽间
走廊
其他



评论 0