集间设计 | TIAM CAFE
空间类型餐饮
面积40m²
花费10~20万
位置成都市
风格 混搭、美式、古典、法式、自然风
前言
本案是三名有梦想的年轻人,从上海来到成都聚集在一起,选择在成都闹市附近的老街,希望有一个让顾客坐下来安静法餐、咖啡的店。希望通过设计的力量让顾客长留于此,三人的审美无太大差异,希望小店尽量复古,做旧,小众,不需要强调风格,但包容性要强,让客户一进门就放能松下来吃法餐、甜品、喝咖啡。
· 户型图

原始结构图

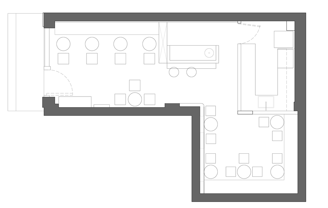
平面布置图
设计说明:
用材工艺:老木梁、艺术漆、做旧木、铁艺、艺术玻璃、年轮地板、墙纸
设计难点:空间的趣味性、互动性和包容性。既要复古的意境,又需要满足顾客对与空间美感、材质的审美,同时还需要去每个小型空间或立面创造更多的互动可能性。
设计重点:利用艺术漆面、原建筑斑驳做旧墙面、老木梁、实木做旧墙板,增强空间的古朴质感,提高空间的艺术特质。在做旧古朴空间中,每位顾客将最大限度放松下来,同时也有互动性、包容性。仿如短暂性的远离尘世生活,如入梦境,给人美好的空间感受和享用美食甜品咖啡趣味体验。同色系、古朴材质的表达,营造独特的画面及意境。
本案以“古朴”、“现材”、“情绪”作为设计核心重点,设计做旧,小众,
古朴: 设计运用大面积的艺术漆做旧墙面,极力的将自然古朴的意味做到极致。
现材:将原墙面,以看似随意而艺术的方式凿毛墙面的处理,原店铺剩下的老木头拆除时已破损,就地取材,将就原来的质感保留下来,以至于空间随性、包容的空间感受。
情 绪: 整体设计采用大面积的中性咖啡及咖啡气泡的颜色、以及深色漆面运用,让进入空间的人静下来,沉浸进去,做旧铜灯照射的灯光,微微给人微醺的感受,铁艺艺术玻璃透过灯光,给人梦幻的想象场景。空间中仿佛罩了一层滤镜,从而营造情绪化空间氛围。
设计说明:
用材工艺:老木梁、艺术漆、做旧木、铁艺、艺术玻璃、年轮地板、墙纸
设计难点:空间的趣味性、互动性和包容性。既要复古的意境,又需要满足顾客对与空间美感、材质的审美,同时还需要去每个小型空间或立面创造更多的互动可能性。
设计重点:利用艺术漆面、原建筑斑驳做旧墙面、老木梁、实木做旧墙板,增强空间的古朴质感,提高空间的艺术特质。在做旧古朴空间中,每位顾客将最大限度放松下来,同时也有互动性、包容性。仿如短暂性的远离尘世生活,如入梦境,给人美好的空间感受和享用美食甜品咖啡趣味体验。同色系、古朴材质的表达,营造独特的画面及意境。
本案以“古朴”、“现材”、“情绪”作为设计核心重点,设计做旧,小众,
古朴: 设计运用大面积的艺术漆做旧墙面,极力的将自然古朴的意味做到极致。
现材:将原墙面,以看似随意而艺术的方式凿毛墙面的处理,原店铺剩下的老木头拆除时已破损,就地取材,将就原来的质感保留下来,以至于空间随性、包容的空间感受。
情 绪: 整体设计采用大面积的中性咖啡及咖啡气泡的颜色、以及深色漆面运用,让进入空间的人静下来,沉浸进去,做旧铜灯照射的灯光,微微给人微醺的感受,铁艺艺术玻璃透过灯光,给人梦幻的想象场景。空间中仿佛罩了一层滤镜,从而营造情绪化空间氛围。
· 吧台区





· 走廊区





· 卡座区







· 内堂区




· 店面门头


更多推荐
在线咨询
目录
户型图
吧台区
走廊区
卡座区
内堂区
店面门头



评论 0