古月·胡哲|130㎡极简奶油风江景房打造视觉200㎡大平层!
户型三室
面积138m²
花费50万以上
位置广州市
风格 现代、简约、自然风
前言
其实
绝多数屋主都希望通过设计后的家除了满足生活需求、情感需求外
还希望空间显大
我们这个案例也不例外
所以我们通过一些空间布局上的调整和设计上的技巧让空间变大
绝多数屋主都希望通过设计后的家除了满足生活需求、情感需求外
还希望空间显大
我们这个案例也不例外
所以我们通过一些空间布局上的调整和设计上的技巧让空间变大
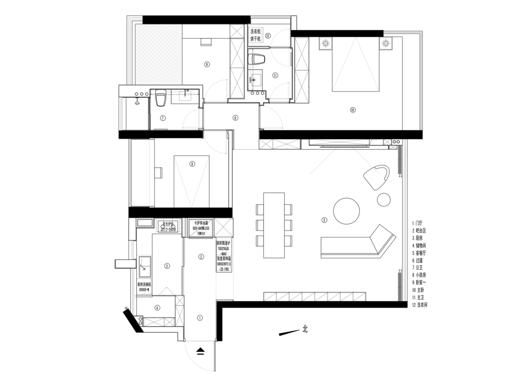
· 户型图

原户型简述:
1.三室两厅两卫一厨双阳台户型
2.客餐厅因为阳台的切割原因,方正的户型缺了一角,视觉上略显压抑
3.厨房偏小,不能满足屋主使用需求
1.三室两厅两卫一厨双阳台户型
2.客餐厅因为阳台的切割原因,方正的户型缺了一角,视觉上略显压抑
3.厨房偏小,不能满足屋主使用需求

平面改造:
1.把入户阳台与厨房墙体打开,重新调整功能布局
2.把厨房改成半开放式厨房,增加厨房与客餐厅互动性
3.把景观阳台并入室内,增加客餐厅空间面积
4.把景观阳台墙体打掉,让客餐厅户型方正、视野开阔
5.利用卧室飘窗台的空间,增加卧室空间面积
1.把入户阳台与厨房墙体打开,重新调整功能布局
2.把厨房改成半开放式厨房,增加厨房与客餐厅互动性
3.把景观阳台并入室内,增加客餐厅空间面积
4.把景观阳台墙体打掉,让客餐厅户型方正、视野开阔
5.利用卧室飘窗台的空间,增加卧室空间面积
· 玄关

本案整个空间的调性充满现代设计的极简之美,摒弃了冗杂的修饰成分,强调生活与实用价值,用心去感受室内与室外的关系,室外周围环境的关系,室内外与人的关系,引入室外的自然景色为室内所用。

入户即为极简的奶白色系,半开放式厨房的设定让这个空间既是岛台区域,又让玄关区域空间得到延伸。
· 厨房

冰箱的外置给厨房预留出足够富余的空间,厨房选配黑色极窄框玻璃门吊趟门。
· 客餐厅

以暖色调为主 ,大量留白,在总体布局上满足业主生活的需求。

在设计中采用了简洁、简约的语言,以奶油色调营造温馨感,更为空间增添了静谧与优雅的气息,远离浮世,乐享清闲。

餐厅与客厅一体,一边连接吧台和厨房,动线合理,用餐便利,一边利用大落地玻璃连接江边景色,在用餐的同时还可以欣赏窗外的自然风光

自由随性、简洁明朗,把周边的美景尽收屋内。


电视背景墙做了一个黑色体块,嵌入奶白色柜子里,奶白色柜子也做了一个体块分开的处理,既能让空间有趣,产生穿插关系。又因为最右边的柜子做了一个包水管的处理,把柜子游离开也利于后期的检修。

景色如画的户外标配大落地玻璃,有种“身在城市,意在山林”的抽离感,亦是“多方胜景,咫尺山里”的诗意感,亦是“境在此中,源于山林”的温度感。

靠在窗边,在天然的景色下,人瞬间放松下来。一把椅、一杯茶、一本书、一下午。

大量留白、少量陈设,不让过度的物质欲望捆绑自己,让生活回归真正的简单。


放眼望去,大面积的奶白色与小面积的黑色相搭配,脱离了传统黑白设计的暗沉,呈现出整个空间的敞亮通透。


装饰上无冗余,打造都市生活下的随性居所。


形的极简,色的朴素,在材质中循迹自然与时间印记,是对事物本质洞察的智慧,亦是生活本真的回归

随着居住时间的增长,生活的痕迹慢慢填满房间,从而打造出只属于屋主的特色极简生活。

繁华落尽,最打动人心的还是大自然纯粹朴实的色彩与质感。最终我们还是要讨好自己,回归初心,静享自然。
· 卧室

进入主卧,迎面而来的是卧室大玻璃窗外的江边绿景,让人轻松愉悦。

卧室简约至极才是放松身心的最好选择,暖白的墙面与黑色的柜门,在经典的千鸟格床头搭配下营造着自然原生态的质朴美感。
· 儿童房

女孩房飘窗设计到位,充分利用窗台面积,让飘窗成为宝藏空间,找回属于你的“诗和远方”。

利用飘窗做了一个大书桌,采用东方的框景手法,既能框住窗外的景又让空间更为整体,还能解决卧室的光源问题。
· 书房

多功能房中,我们选用黑白木作为空间的主色调,白色柜子与黑色书桌拼接,展现精致的现代气质。

多功能房中没有过多的矫饰,秉承着极简主义的生活方式。

可以临时休息、阅读、品茶及赏外面的景色。
· 卫生间

卫生间中我们选用奶油色系的砖墙体通铺,让卫生间干净整洁之余又不失温馨。

奶油砖选用哑光的材质,增添了空间的静谧感,简雅而素淡,展现了与众不同的艺术美感。
· 效果与实景

上效果图,下实景图

上效果图,下实景图

上效果图,下实景图

上效果图,下实景图

上效果图,下实景图

上效果图,下实景图
· 改造前后

上改造前,下改造后

上改造前,下改造后

上改造前,下改造后

上改造前,下改造后

上改造前,下改造后

上改造前,下改造后
更多推荐
在线咨询
目录
户型图
玄关
厨房
客餐厅
卧室
儿童房
书房
卫生间
效果与实景
改造前后



评论 0