精装房不能等于毛坯房
户型四室
面积125m²
花费20~30万
位置合肥市
风格 现代
前言
对于精装房,最大的难点尽量保留硬装,毕竟都是花钱买来的。批量的装修,满足不了屋主的功能及美学需求。
保留厨卫,在客餐厅及卧室提取屋主家的畅想,把功能融入在空间里。
户型痛点及业主需求:
精装房在不拆除的情况下,增加了户型改造的难度
屋主想要保留的原有地面砖,是传统的分色菱形砖,外加了一圈波导线。这种地面砖很难自然融入在新的设计方案里。
4个卧室均需要保留,北边两个卧室的布局被动线占用,连放下一组衣柜都有些局促。
南次卧采光面较窄。
设计亮点:
对于保留的地面砖,我们通过提取菱形地砖和波导线的颜色明度和色系来作为后期的设计用色,这样可以最大化的让地面融入到后期的整个空间儿不显突兀。
· 电视墙柜体开放格颜色提取了菱形砖里面的浅色。
· 餐厅一把餐椅和沙发旁的小茶几提取了波导线的黑色。
· 整个空间的硬装和软装的色彩都利用了暖色,让地面的色块更好的融入到空间中。
两个北卧室动线内推,各自让出一组衣柜位置,增加了空间的利用率。
扩大了玻璃门增大了南次卧的采光面。
保留厨卫,在客餐厅及卧室提取屋主家的畅想,把功能融入在空间里。
户型痛点及业主需求:
精装房在不拆除的情况下,增加了户型改造的难度
屋主想要保留的原有地面砖,是传统的分色菱形砖,外加了一圈波导线。这种地面砖很难自然融入在新的设计方案里。
4个卧室均需要保留,北边两个卧室的布局被动线占用,连放下一组衣柜都有些局促。
南次卧采光面较窄。
设计亮点:
对于保留的地面砖,我们通过提取菱形地砖和波导线的颜色明度和色系来作为后期的设计用色,这样可以最大化的让地面融入到后期的整个空间儿不显突兀。
· 电视墙柜体开放格颜色提取了菱形砖里面的浅色。
· 餐厅一把餐椅和沙发旁的小茶几提取了波导线的黑色。
· 整个空间的硬装和软装的色彩都利用了暖色,让地面的色块更好的融入到空间中。
两个北卧室动线内推,各自让出一组衣柜位置,增加了空间的利用率。
扩大了玻璃门增大了南次卧的采光面。
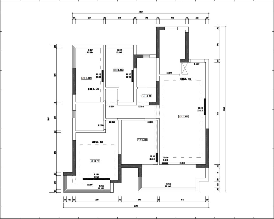
· 户型图


· 玄关

洞洞板增加空间立面使用率。
· 客厅

· 保留原地面的菱形格地砖,挪动墙暖,入户左手侧设置收纳柜,增加了客厅的收纳功能,整洁的柜体让空间更干净,减少隐形家务。
· 拆除客厅与阳台的移门,让空间融为一体,双人位沙发搭配趣味十足的斑马条纹单人沙发,解放了空间,满足了使用功能。
· 无法拆除的构造柱给空间不一样的美感。把客厅的墙暖放在了阳台使用。
· 在单品的选择上,尽量选用色彩更具有视觉跳跃性的颜色,增加整个空间的趣味性。
· 拆除客厅与阳台的移门,让空间融为一体,双人位沙发搭配趣味十足的斑马条纹单人沙发,解放了空间,满足了使用功能。
· 无法拆除的构造柱给空间不一样的美感。把客厅的墙暖放在了阳台使用。
· 在单品的选择上,尽量选用色彩更具有视觉跳跃性的颜色,增加整个空间的趣味性。




原装修

原装修

· 餐厅




· 客餐厅一体的空间,通过吊顶明确的空间的功能划分,通铺的地面让空间一体,同时不规则吊顶增加了空间的丰富度。
· 餐厅背景墙和客厅电视墙通过开放格来划分同时又紧密相连,开放格很好的解决幼龄宝宝的玩具收纳。
· 优化了动线,减少动线带来的空间浪费,把墙暖设置在餐厅区域,解放了客厅背景墙,使用起来也很方便。
· 餐厅背景墙和客厅电视墙通过开放格来划分同时又紧密相连,开放格很好的解决幼龄宝宝的玩具收纳。
· 优化了动线,减少动线带来的空间浪费,把墙暖设置在餐厅区域,解放了客厅背景墙,使用起来也很方便。



· 卧室



· 阳台


· 扩大了阳台原建筑的门洞,抓住户型特点,利用不同材质分离和弱化结视觉上消烟台尺度较窄的感觉。
· 玻璃门增大了南次卧的采光面。
· 玻璃门增大了南次卧的采光面。

更多推荐
在线咨询
目录
户型图
玄关
客厅
餐厅
卧室
阳台



评论 0