暖暖二人世界
户型三室
面积140m²
花费50万以上
位置北京市
风格 现代
前言
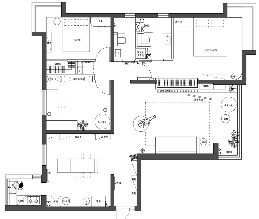
本案设计亮点:原本主卧比较小,摆放完2米宽的床就没衣柜位置了。于是通过调整卫生间格局,并且利用承重墙中间一段非承重墙的厚度来消隐衣柜空间,达到超大的主卧舒适空间。
书房则选择撞色打造炫酷区域,球鞋展示,超大L型书桌,窗台部分还能实现电动升降。
书房则选择撞色打造炫酷区域,球鞋展示,超大L型书桌,窗台部分还能实现电动升降。
· 户型图


· 玄关

· 客厅






· 厨房

· 餐厅



· 卫生间

· 卧室


· 书房


更多推荐
在线咨询
目录
户型图
玄关
客厅
厨房
餐厅
卫生间
卧室
书房



评论 0