《重构》
户型两室
面积70m²
花费5万以下
位置北京市
风格 现代
前言
在这个空间里,保证了足够的储物空间,放弃了独立的厨房,放弃了舒适的独立床,让所有的门打开后都能很自然的融合起来,空间最大化。
· 户型图

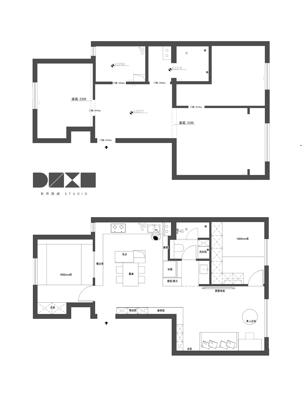
原始布局:
缺陷总结1.厨房过小,不够用;2.餐厅摆放完餐桌后,进入客厅动线会变得曲折狭窄;3.餐厅与客厅连接的两堵墙视角太窄,特别影响空间感受;4.卫生间面积够大,但放不下独立淋浴房。
改造布局:
1.重新划分主卫和厨房空间,将厨房和餐厅结合起来,公用一部分空间,从而达到空间的利用和增加通透感;2.洗手台干区外置,将空间融入客厅的区域,使空间通透性最大化;3.餐厅与客厅连接的位置,底部设置了矮柜,保证充足的储物空间,上半部分镂空,大大改善了之前的窄视角。
缺陷总结1.厨房过小,不够用;2.餐厅摆放完餐桌后,进入客厅动线会变得曲折狭窄;3.餐厅与客厅连接的两堵墙视角太窄,特别影响空间感受;4.卫生间面积够大,但放不下独立淋浴房。
改造布局:
1.重新划分主卫和厨房空间,将厨房和餐厅结合起来,公用一部分空间,从而达到空间的利用和增加通透感;2.洗手台干区外置,将空间融入客厅的区域,使空间通透性最大化;3.餐厅与客厅连接的位置,底部设置了矮柜,保证充足的储物空间,上半部分镂空,大大改善了之前的窄视角。
· 玄关

· 客厅






· 厨房



· 餐厅




· 卫生间


· 卧室



· 儿童房

更多推荐
在线咨询
目录
户型图
玄关
客厅
厨房
餐厅
卫生间
卧室
儿童房



评论 0