现代极简 独属于他和她的精神居所
户型别墅
面积360m²
花费50万以上
位置沧州市
风格 混搭
前言
采用简约风格,摒弃繁杂的装饰,注重线条的简洁和功能的实用,打造出既美观又实用的居住环境。
· 负一楼客厅







· 负一影厅






· 负一卫生间




· 一楼走廊






· 一楼客厅










· 一楼餐厅




· 一楼厨房



· 一楼卫生间



· 一楼儿童房




· 二楼客厅




· 二楼衣帽间





· 二楼主卧



· 二楼主卫





· 三楼卧室


· 三楼卫生间


· 三楼客厅





· 三楼干区




· 三楼楼梯



· 四楼客厅

· 四楼猫犬舍



· 四楼衣帽间




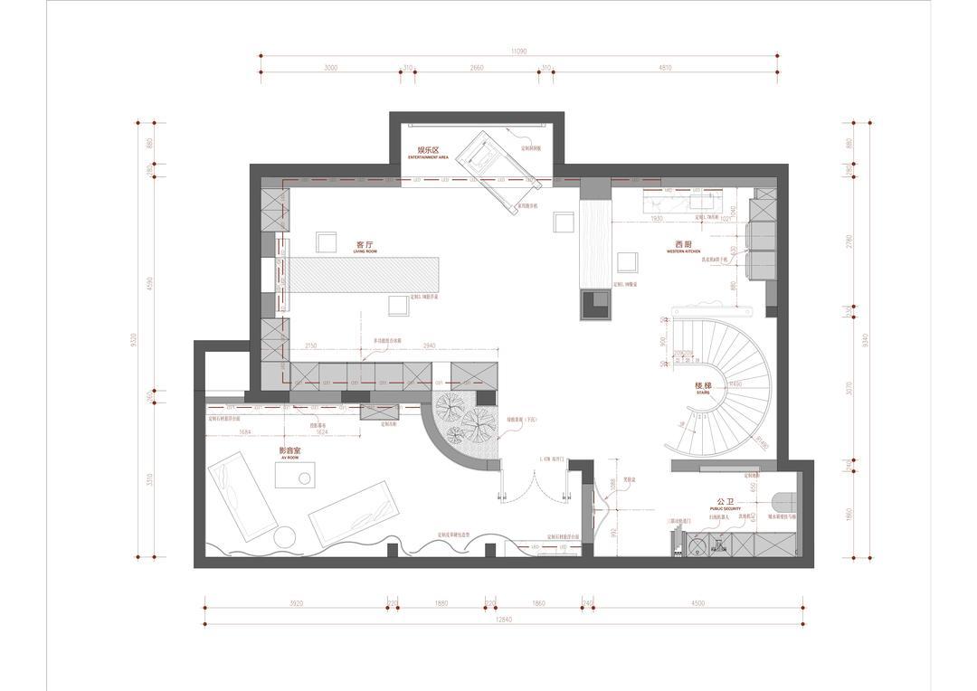
· 负一户型图

· 一楼户型图

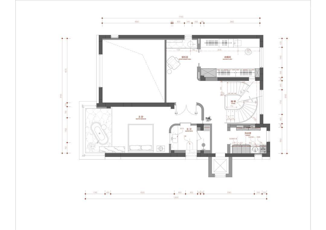
· 二楼户型图

· 三楼户型图

· 四楼户型图

更多推荐
在线咨询
目录
负一楼客厅
负一影厅
负一卫生间
一楼走廊
一楼客厅
一楼餐厅
一楼厨房
一楼卫生间
一楼儿童房
二楼客厅
二楼衣帽间
二楼主卧
二楼主卫
三楼卧室
三楼卫生间
三楼客厅
三楼干区
三楼楼梯
四楼客厅
四楼猫犬舍
四楼衣帽间
负一户型图
一楼户型图
二楼户型图
三楼户型图
四楼户型图



评论 0