40㎡老破小变身三室两厅两卫
户型三室
面积40m²
花费20~30万
位置北京市
风格 日式
前言
本案的业主是我们的老朋友,我们因五年前的第一次设计结缘,如今他们的第二套房子也选择了我们,这份信任让我们倍感荣幸。这是一套位于西城区面积40㎡的学区房,是老破小户型中典型的八零筑二户型。所谓八零筑二,即诞生于八十年代的紧凑型二居室,户型为长条形布局,两个卧室分布于两端,客厅(餐厅)、厨房和卫生间位于中间位置。这种户型的缺点非常明显,即缺少家庭成员共同使用的公共空间,厕所和卫生间面积极小,不满足现代家庭生活的使用需求。
虽然面积仅有40㎡,业主在这套新居想要实现的生活场景却媲美三居室大户型,首先要为三代人设置三个可居住空间;还要有一家人一起休闲娱乐、用餐以及孩子学习、练钢琴的公共空间;甚至为了满足一家人在早上高峰期的用厕需求,希望可以安排两个卫生间,以及一个独立式的日式浴室,淋浴泡澡两不误。最终在40㎡的小户型中实现“三室两厅双卫”的生活需求。如何实现这看上去的“mission impossible”,就是我们本次设计的重点。
虽然面积仅有40㎡,业主在这套新居想要实现的生活场景却媲美三居室大户型,首先要为三代人设置三个可居住空间;还要有一家人一起休闲娱乐、用餐以及孩子学习、练钢琴的公共空间;甚至为了满足一家人在早上高峰期的用厕需求,希望可以安排两个卫生间,以及一个独立式的日式浴室,淋浴泡澡两不误。最终在40㎡的小户型中实现“三室两厅双卫”的生活需求。如何实现这看上去的“mission impossible”,就是我们本次设计的重点。
· 户型图

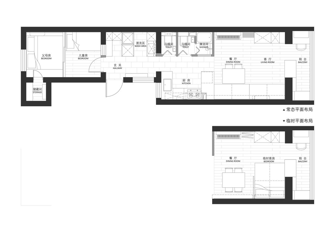
原始户型图

方案平面图
小户型想要实现功能上的“扩容”,就要充分利用空间的可变性和精确的尺寸控制。在平面布置上,我们将几个体量较大的功能,如冰箱、洗衣机、洗漱区等都放置于内厅,使采光更好、使用更舒适的公共空间最大程度地开放;将厨房与客厅之间的隔墙拆除,并适当增加厨房面积,实现更为实用的U型台面;卫生间参考日式三分离卫浴尺寸,设置了两个独立的马桶间,其中一个马桶间与浴室相连;在三个卧室的安排上,由于现阶段孩子年纪尚小,我们将儿童房与父母房相邻,通过推拉门使两个居住空间之间可开可合,而长辈过来照顾孩子时临时休息使用的卧室则通过可变的客厅沙发模块来实现,在不住人时空间完全开敞,需要居住时通过移动沙发模块可能快速地转换功能并通过折叠门封闭。
小户型想要实现功能上的“扩容”,就要充分利用空间的可变性和精确的尺寸控制。在平面布置上,我们将几个体量较大的功能,如冰箱、洗衣机、洗漱区等都放置于内厅,使采光更好、使用更舒适的公共空间最大程度地开放;将厨房与客厅之间的隔墙拆除,并适当增加厨房面积,实现更为实用的U型台面;卫生间参考日式三分离卫浴尺寸,设置了两个独立的马桶间,其中一个马桶间与浴室相连;在三个卧室的安排上,由于现阶段孩子年纪尚小,我们将儿童房与父母房相邻,通过推拉门使两个居住空间之间可开可合,而长辈过来照顾孩子时临时休息使用的卧室则通过可变的客厅沙发模块来实现,在不住人时空间完全开敞,需要居住时通过移动沙发模块可能快速地转换功能并通过折叠门封闭。
· 玄关


一进门6.5㎡的内厅,容纳了玄关、冰箱、洗烘套装以及盥洗区等众多功能,同时玄功储物,清洁用品也都就近收纳,方便实用。

家政收纳柜位于浴室柜旁边,下方还预留了扫拖机器人空间。
· 厨房


将厨房与客厅之间的轻质隔墙拆除,使空间连通,视野更为开阔。原L型台面空间有限,使用不便,我们将之改为U型三面台面,增加面向客厅的岛台,在紧凑的空间更要注重使用的便捷性。通过精准的尺寸计算,使嵌入式烤箱、洗碗机、电饭煲、管线机、咖啡机等设备均得以有序安置。

洗碗机柜门使用橱柜门板,整体性更强。电饭煲使用抽拉板放置于台面之下,不占用台面,使用时可以方便地抽出。

平衡式燃气热水器及其电源、水口也完全隐藏于吊柜之中,关上柜门,视线更加干净整齐。

橱柜转角处为分类垃圾桶预留了位置,里侧设置开敞格可更方便的收纳和拿取物品。
· 卫生间


在面积极为有限的情况下,两个独立的马桶间均采用了人体工程学上的极限尺寸,同时均设置了迷你洗手池,方便使用。


马桶间面积虽然小,但马桶喷枪、洗手液及纸品收纳一应俱全。


独立的日式浴室功能完备,淋浴与浴缸不共用空间,方便使用。浴缸上方设置了青空灯,为狭小空间营造如天光般的沐浴环境,减少空间压抑感。

朝向走廊一侧的墙体则设计了通风高窗,解决暗卫通风差、水汽重的弊端。
· 客厅


空间可变性是客厅的设计重点,在有限的面积里,既要实现现阶段使用时开敞的空间,满足共同的家庭生活需要,也能转换功能为老人提供临时的休息居住空间,同时保证基本的遮光和隔音。


在比选过各种不同的移动隔断形式后,我们最终选择了吊轨折叠门,在需要增加住宿空间时可以便捷地关闭门扇;而在折叠收纳于一侧后又能瞬间打通整个空间,小户型的通透感直接翻倍。



沙发和用餐区没有采用常规方式,而是借鉴了日本建筑师宫胁橝先生的作品,沿房间一侧设置了四个箱体盒子作为沙发和餐椅使用,从人体工程学的角度上来说,沙发和餐椅的舒适高度是不同的,因此我们通过坐垫高度的不同来区分沙发和用餐区,不仅保持了空间的延续感,坐起来也非常舒适、方便。整排的墙面书架和延续的墙板也都强化了这种空间上的整体性,使小空间看起来更为开阔。

箱体盒子不仅能灵活移动,还具备强大的储物功能。

在需要增加住宿空间时,可以将四个箱体重新组合起来,形成一个双人床。


随着孩子的成长,他将需要自己更为独立的居住空间,吊轨折叠门在关闭时可形成相对私密的独立卧室,空间一分为二互不干扰,同时木格栅门也能为公共区域提供采光。为了方便后期作为卧室使用,我们也为之设置了衣柜、书架和书桌等。

远景方案平面图

为了使折叠门在关闭时能与墙面完全贴合,我们在整排书架之中与移门轨道对应的位置设置了可开启的合页门,下部墙板也在对应位置定做了可拆卸的活动墙板,以保证卧室使用时的私密性。
· 阳台


阳台空间虽然不大,也在家庭生活中担当了不小的角色,一侧是办公区,在有限的空间下充分利用墙面收纳,嵌入式布局使办公区域更为安静、私密。


另一侧则结合阳台配重墙垛形成小小读书角,既能舒适地看书,又能巧妙地储物,让每一寸空间都“物尽其用”。
· 卧室

卧室与内厅之间的洞口采用日式雪见窗,窗扇可上下推拉,既保证卧室的隐私性,又增加了内厅的通风和采光。


主卧空间通过实木障子推拉门分成内外两部分,内部为双人地台床,外部作为过渡时期的儿童床使用,后期孩子独立居住后改为影音休闲区。推拉门的门扇采用雪见窗,窗扇可以上下随意悬停,在内外之间形成多种框景。既能在需要时隔绝视线,保证隐私;又能重合折成小小一叠,实现两个空间之间最大程度的通透。

卧室的薄地台也做了抽拉式储物,不浪费一分一毫的空间。

孩子年纪还小,短期内需要与父母同住,后期再换至客厅的独立卧室,因此我们在主卧内设置了高架儿童床,满足现阶段孩子爬上爬下的愿望;同时预留后期改造为休闲功能的基础条件。随着孩子的成长,房间也能自由变换。

儿童床与内厅连通的一扇小小雪见窗也是孩子的乐趣所在。

卧室西侧由于顶层公共楼梯的上部结构多了一块面积约2㎡的夹层空间,出于对承重结构的安全性考虑,我们没有扩大洞口尺寸,而是利用墙体厚度设计了三层嵌入式书架,同时也是储藏间的房门。平时门关闭时可用于放置床头物品,隐形且不占空间;打开门时内部则别有洞天,储物量也很可观。
· 前后对比



更多推荐
在线咨询
目录
户型图
玄关
厨房
卫生间
客厅
阳台
卧室
前后对比



评论 0