168平四房改三房,大横厅的通透想不显大都难!
户型三室
面积168m²
花费50万以上
位置泰州市
风格 现代
前言
家的故事从踏入家门的那一刻悄然开始。我们洞悉空间内不同关系的生活需求,关注和揣摩家宅的社交平衡、空间平衡、环境平衡,于有限空间内延展无限的温情。
本案是三口之家,偶尔老人也会过来居住。设计师在户型上将四室改成三室,以优雅浪漫的线条为画笔,勾勒出自然舒适➕暖色系的雅致生活空间,简约不简单的线条,结合柔然明亮的配色,给家增加了温馨氛围。
本案是三口之家,偶尔老人也会过来居住。设计师在户型上将四室改成三室,以优雅浪漫的线条为画笔,勾勒出自然舒适➕暖色系的雅致生活空间,简约不简单的线条,结合柔然明亮的配色,给家增加了温馨氛围。
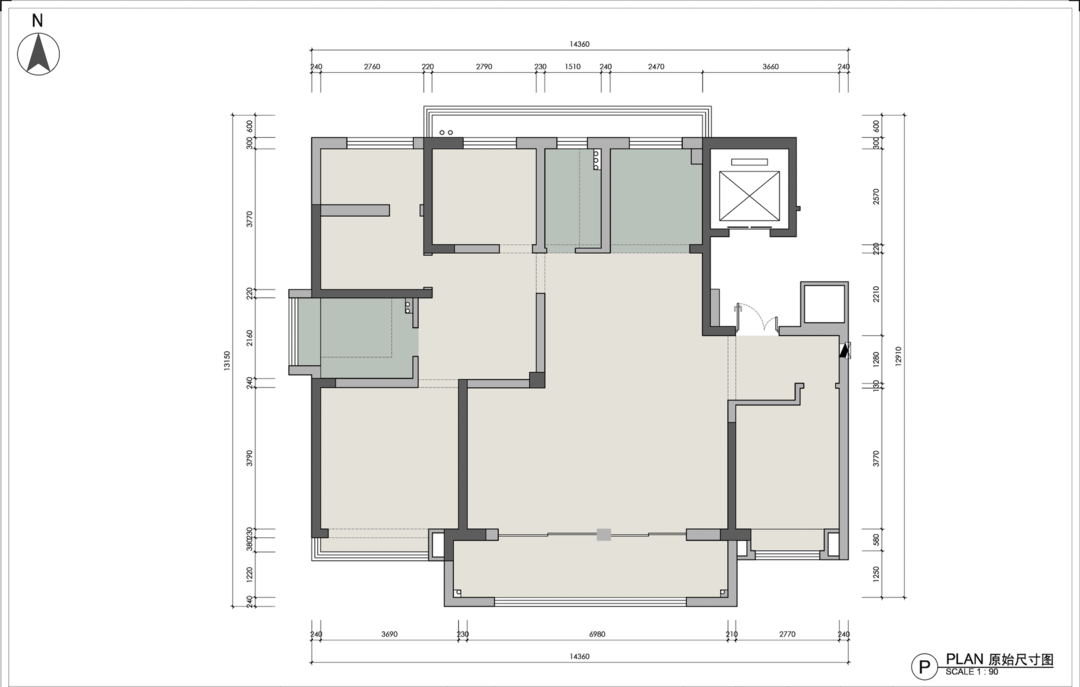
· 户型图

原始结构图
原始户型是四室一厅两卫,墙体较多,有些墙体显得空间逼仄。应业主需求,三室足够日常生活需要,所以在户型上进行了一些改造。
原始户型是四室一厅两卫,墙体较多,有些墙体显得空间逼仄。应业主需求,三室足够日常生活需要,所以在户型上进行了一些改造。

平面设置图
改造后的平面方案:
1.门厅空间部分,拐角墙体打掉,由原本拐角通道变成一个具有门厅、通道、鞋帽柜储藏多功能的空间。
2.客餐厅位置的一堵厚墙改薄,把原来给主卧衣帽间的空间一分为二,一半给到餐厅,一半给到卧室。增加了餐厅的使用空间。
3.原本北面的小阳台墙体砸掉,使厨房、卫生间及小房间的面积向外扩展,提高了面积利用率。
4.把原本南面阳台打开,使客厅休闲区变成一个大开间,显得宽敞明亮。
5.北面小卧室的墙体砸掉,做成移门,打造成衣帽间及晾晒区,增加南北光线及通透感。
6.主卧卫生间想做成四分离形式,但卫生间原先偏小,将墙体往卧室方向内移一部分。墙体一面做成卫生间洗手台,一面则是卧室梳妆台兼书桌功能的悬浮台。衣柜则设在主卧进门位置。这样主卧空间则会变大一些,卫生间也能满足需求。
改造后的平面方案:
1.门厅空间部分,拐角墙体打掉,由原本拐角通道变成一个具有门厅、通道、鞋帽柜储藏多功能的空间。
2.客餐厅位置的一堵厚墙改薄,把原来给主卧衣帽间的空间一分为二,一半给到餐厅,一半给到卧室。增加了餐厅的使用空间。
3.原本北面的小阳台墙体砸掉,使厨房、卫生间及小房间的面积向外扩展,提高了面积利用率。
4.把原本南面阳台打开,使客厅休闲区变成一个大开间,显得宽敞明亮。
5.北面小卧室的墙体砸掉,做成移门,打造成衣帽间及晾晒区,增加南北光线及通透感。
6.主卧卫生间想做成四分离形式,但卫生间原先偏小,将墙体往卧室方向内移一部分。墙体一面做成卫生间洗手台,一面则是卧室梳妆台兼书桌功能的悬浮台。衣柜则设在主卧进门位置。这样主卧空间则会变大一些,卫生间也能满足需求。
· 玄关

木纹色简约玄关,充满了自然与时尚的融合。整个玄关以木纹色为主调,给人一种温暖和舒适的感觉。同时,简约的设计以及木质格栅让整个空间更加整洁和有序。
进门玄关区域对面是儿童房,但隐形门的设计让其与整个空间融为一体。鞋帽柜的设计让玄关区域有足够的储物空间。
地面上铺设的大理石花纹瓷砖,既增加了整个空间的质感,又与木色区域形成了对比。
进门玄关区域对面是儿童房,但隐形门的设计让其与整个空间融为一体。鞋帽柜的设计让玄关区域有足够的储物空间。
地面上铺设的大理石花纹瓷砖,既增加了整个空间的质感,又与木色区域形成了对比。

· 客厅

现代简约客厅的布局以空间感和收纳为重点,提高空间利用率,使整个客厅显得明亮宽敞。
采用浅色系,给人一种轻松舒适的氛围。
电视背景墙也是客厅的重要焦点之一,将造型和储物空间融合起来。在斜面设置一个切角,形成一个壁龛,增添电视背景墙的丰富性。
落地窗为客厅带来了丰富的自然光线,舒适的沙发和造型茶几提供了一个悠闲的休憩区域,供家人和朋友们聚会。阳台墙角位置设了小景观绿植,为客厅增添了一抹生机和艺术气息。
无论是家庭聚会还是朋友聚会,这个客厅的布局规划都能为业主带来舒适愉悦的体验。
采用浅色系,给人一种轻松舒适的氛围。
电视背景墙也是客厅的重要焦点之一,将造型和储物空间融合起来。在斜面设置一个切角,形成一个壁龛,增添电视背景墙的丰富性。
落地窗为客厅带来了丰富的自然光线,舒适的沙发和造型茶几提供了一个悠闲的休憩区域,供家人和朋友们聚会。阳台墙角位置设了小景观绿植,为客厅增添了一抹生机和艺术气息。
无论是家庭聚会还是朋友聚会,这个客厅的布局规划都能为业主带来舒适愉悦的体验。




· 餐厅

餐厅简洁、时尚、实用。餐桌采用奢石桌面,美观的同时耐用以及易清洁。搭配同色系餐椅,为餐厅增加了一丝奢华感。
餐桌的左右两边都具备了储物空间。一边的玻璃展柜方便展示业主的珍酒以及一些艺术品。同时旁边的柜体里也设置了怪物拉篮,满足业主各种零食储物需求。
餐桌另一边则是西厨操作台,台面由一整块大理石切割而成,确保其整体性。台面下则是储物抽屉。
餐厅区域同时具备了操作、用餐、储物的功能,与客厅紧密相连,创造了一个开放和通透的环境。不仅增加了餐厅的通透、宽敞感,也方便了家人或朋友之间的交流和互动。
餐桌的左右两边都具备了储物空间。一边的玻璃展柜方便展示业主的珍酒以及一些艺术品。同时旁边的柜体里也设置了怪物拉篮,满足业主各种零食储物需求。
餐桌另一边则是西厨操作台,台面由一整块大理石切割而成,确保其整体性。台面下则是储物抽屉。
餐厅区域同时具备了操作、用餐、储物的功能,与客厅紧密相连,创造了一个开放和通透的环境。不仅增加了餐厅的通透、宽敞感,也方便了家人或朋友之间的交流和互动。





· 厨房

厨房是家庭生活中非常重要的区域,浅色调的橱柜给人一种明亮、清爽的感觉,与现代简约风格的整体设计相得益彰。
采用简洁的线条和无把手设计,使整个厨房看起来更加简洁大方。同时,橱柜的收纳功能也得到了充分发挥,各种功能区域划分合理,让厨房用具和食材都能找到合适的存放位置。
采用简洁的线条和无把手设计,使整个厨房看起来更加简洁大方。同时,橱柜的收纳功能也得到了充分发挥,各种功能区域划分合理,让厨房用具和食材都能找到合适的存放位置。

· 主卧套间

主卧呈现简约时尚的整体氛围,室内的弧形造型让柱体和梁体巧妙融合,避免了户型的缺憾,彰显和谐的美感,让整体空间更加流畅。
简约的床头背景和家具使主卧空间看起来干净整洁,没有多余复杂元素,展现出高品质的生活态度。
简约的床头背景和家具使主卧空间看起来干净整洁,没有多余复杂元素,展现出高品质的生活态度。


主卧套间中设置了四分离卫生间,将洗手台、马桶、淋浴间和浴缸等功能区分开,使每个功能区都能够独立运作。
这种设计不仅可以避免不同功能之间的互相干扰,还能提供更好的通风和排水效果。使得整个卫生间空间更加合理和实用。
这种设计不仅可以避免不同功能之间的互相干扰,还能提供更好的通风和排水效果。使得整个卫生间空间更加合理和实用。
· 儿童房

儿童房整体采用蓝色调,可以让孩子感到安心和放松。床品、墙画及窗帘很好地呼应在一起,为房间增添一丝清新的氛围。
儿童房的床品边角均采用布艺包裹,包括床头柜。不仅具有保护功能,也增加了房间的柔和感。让孩子在屋内更加舒适和安全。
儿童房的床品边角均采用布艺包裹,包括床头柜。不仅具有保护功能,也增加了房间的柔和感。让孩子在屋内更加舒适和安全。

· 衣帽间

衣帽间兼顾洗衣、晾晒功能。浅色调简洁,玻璃门的设计更增加了通透感。
将洗衣、晾晒设置在此区域是因为此房位于偏东区域,因此到下午阳光就能很好地投射进来,满足日照条件。
将洗衣、晾晒设置在此区域是因为此房位于偏东区域,因此到下午阳光就能很好地投射进来,满足日照条件。
更多推荐
在线咨询
目录
户型图
玄关
客厅
餐厅
厨房
主卧套间
儿童房
衣帽间



评论 0