东方韵味十足 新中式才不打低端局
户型三室
面积160m²
花费30~50万
位置武汉市
风格 新中式
前言
装完新中式才发现!这才是国人骨子里的浪漫 ,怀旧感拉满~感受那跨越时空的宁静与和谐♀️。
[咖啡R]新中式融合了传统中式元素与现代设计理念相结合的风格,既保留了中式风格的 雅与韵味,又融入了现代生活的便捷与舒适。
在色彩上追求自然和谐,以深色为主,常用木质材质的原色,如深棕、深红等,同时辅以米白、浅灰等柔和色彩进行搭配,营造出温馨舒适的氛围。
空间布局强调空间的质感和流线感,注重布局的合理化。追求空间的层次感和跳跃感。同时,也善于利用线条和造型来创造出独特的设计效果,使整体空间大而不空。
新中式复古风格,在这里不仅是一种视觉的享受,更是一种生活的态度,一种文化的传承。
[咖啡R]新中式融合了传统中式元素与现代设计理念相结合的风格,既保留了中式风格的 雅与韵味,又融入了现代生活的便捷与舒适。
在色彩上追求自然和谐,以深色为主,常用木质材质的原色,如深棕、深红等,同时辅以米白、浅灰等柔和色彩进行搭配,营造出温馨舒适的氛围。
空间布局强调空间的质感和流线感,注重布局的合理化。追求空间的层次感和跳跃感。同时,也善于利用线条和造型来创造出独特的设计效果,使整体空间大而不空。
新中式复古风格,在这里不仅是一种视觉的享受,更是一种生活的态度,一种文化的传承。
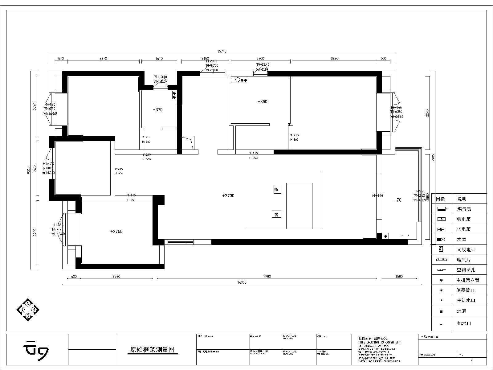
· 户型图


· 客厅

全屋连通开放式布局,整个空间以奶白色和胡桃色为主色调,给人一种沉稳大气的感觉,让现代、复古、中式风格碰撞出别样韵味。
通透空间感。有客人来参观时,真的超有排面。整屋风格和谐宁静,氛围感拉满,这就是中式美学的魅力吧。
通透空间感。有客人来参观时,真的超有排面。整屋风格和谐宁静,氛围感拉满,这就是中式美学的魅力吧。



· 餐厅

从餐边柜到餐桌椅,每一处细节都展现出自然的质感与中式韵味。木色与墨黑色的对比,加上柔和的米白色,整体色调和谐温馨,营造出沉稳而不失温度的用餐环境。
实木家具的温润质感让整个餐厅充满了诗意与雅致。
灯光的柔和光影为餐厅增添了温馨的氛围,每次用餐都像在享受一场视觉与心灵的盛宴。
你也想为家中增添这样一份东方韵味与现代简约的完美结合吗?
实木家具的温润质感让整个餐厅充满了诗意与雅致。
灯光的柔和光影为餐厅增添了温馨的氛围,每次用餐都像在享受一场视觉与心灵的盛宴。
你也想为家中增添这样一份东方韵味与现代简约的完美结合吗?



· 卫生间

新中式卫生间还注重实用性,全瓷花砖搭配不能少。
既满足了家庭成员的日常生活需求,又彰显出审美品位。
卫生间布局讲究通透开阔,采用干湿分离设计。
每一角落都散发着淡淡的墨香与古韵。
既满足了家庭成员的日常生活需求,又彰显出审美品位。
卫生间布局讲究通透开阔,采用干湿分离设计。
每一角落都散发着淡淡的墨香与古韵。


· 卧室

新中式卧室在继承经典的同时,又在设计上突破了传统,舍弃了很多不必要的浮华装饰,在造型上以简单利落的直线条居多。丰富空间装饰多采用简洁硬朗的直线条,反映出现代人追求简单生活的居住要求,更是迎合了中式家具追求内敛、质朴的设计风格。



更多推荐
在线咨询
目录
户型图
客厅
餐厅
卫生间
卧室



评论 0