400㎡ 度假风别墅|治愈人心的纯粹
户型三室
面积400m²
花费50万以上
位置南京市
风格 现代、现代简约、自然风
前言
秀峰隐隐苍林翠,滁水依依清浪白。六合南倚万里长江,北接苏中平原,在青山间探索,在绿水间泛舟,更在山水孕育的田园中远离尘嚣、静享安谧。作为一个度假居所,此地再合适不过了。
· 户型图

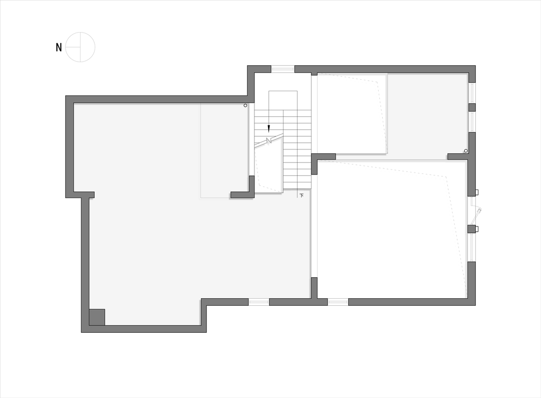
一楼
◾️改造前
一楼进门处有一个宽敞的门厅,门厅正对面就是楼梯,右边是一个下沉式的客厅,楼梯下去就是车库门厅的左边是餐厅和一个封闭式的厨房,外加一间次卧。
◾️改造前
一楼进门处有一个宽敞的门厅,门厅正对面就是楼梯,右边是一个下沉式的客厅,楼梯下去就是车库门厅的左边是餐厅和一个封闭式的厨房,外加一间次卧。

◾️改造后
1⃣️将①入户门替换成长虹玻璃材质,透光不透人顶面做了弧形吊顶,本来顶面的高度就挺高的,没有特意压低,凸显大宅气质。弧形顺延到侧面墙体,做了顶上灯膜,模拟自然光,搭配换鞋凳、穿衣镜和一排挑空鞋柜,满足日常出门需求。
2⃣️基于③下沉式客厅从层高、光线和环境都良好的情况下顺势而为,加强光线的进入,将南面窗户扩大,西面窗户由一扇变为两扇,呈对称型条窗;圆形吊顶呼应空间中的弧形元素,同时也是空调出风口,丰富结构层次;三种不同形态的坐具️将客厅围合;沙发背后用四个拱形组成收纳与颜值一体,上半部分隔板,下半部分柜子;原先的四层台阶,第一踏整体延长至两边墙体,第二踏用了不同材质和颜色,以防出现踩空的情况,第四踏的大理石与过道瓷砖颜色相同无缝衔接。
3⃣️把⑤卫生间墙体内退三个台阶后,根据原有的过道按台阶高度依次拓宽,再将原先直对门厅的楼梯用屏风进行遮挡,扩大②过道的同时实现了双动线,让人可以轻松去往公共区域。采用1cm厚度的钢板,转折处以自然流畅的弧线,统一了建筑的体块感与连续性。
4⃣️一楼次卧空间打开做⑥餐厅,⑤卫生间则在楼梯口,⑧厨房空间也打开做开放式,中西厨加⑦岛台的组合,能更好的与家人互动,此外还做了一个⑨储藏间,用来放置厨房存货等。
1⃣️将①入户门替换成长虹玻璃材质,透光不透人顶面做了弧形吊顶,本来顶面的高度就挺高的,没有特意压低,凸显大宅气质。弧形顺延到侧面墙体,做了顶上灯膜,模拟自然光,搭配换鞋凳、穿衣镜和一排挑空鞋柜,满足日常出门需求。
2⃣️基于③下沉式客厅从层高、光线和环境都良好的情况下顺势而为,加强光线的进入,将南面窗户扩大,西面窗户由一扇变为两扇,呈对称型条窗;圆形吊顶呼应空间中的弧形元素,同时也是空调出风口,丰富结构层次;三种不同形态的坐具️将客厅围合;沙发背后用四个拱形组成收纳与颜值一体,上半部分隔板,下半部分柜子;原先的四层台阶,第一踏整体延长至两边墙体,第二踏用了不同材质和颜色,以防出现踩空的情况,第四踏的大理石与过道瓷砖颜色相同无缝衔接。
3⃣️把⑤卫生间墙体内退三个台阶后,根据原有的过道按台阶高度依次拓宽,再将原先直对门厅的楼梯用屏风进行遮挡,扩大②过道的同时实现了双动线,让人可以轻松去往公共区域。采用1cm厚度的钢板,转折处以自然流畅的弧线,统一了建筑的体块感与连续性。
4⃣️一楼次卧空间打开做⑥餐厅,⑤卫生间则在楼梯口,⑧厨房空间也打开做开放式,中西厨加⑦岛台的组合,能更好的与家人互动,此外还做了一个⑨储藏间,用来放置厨房存货等。

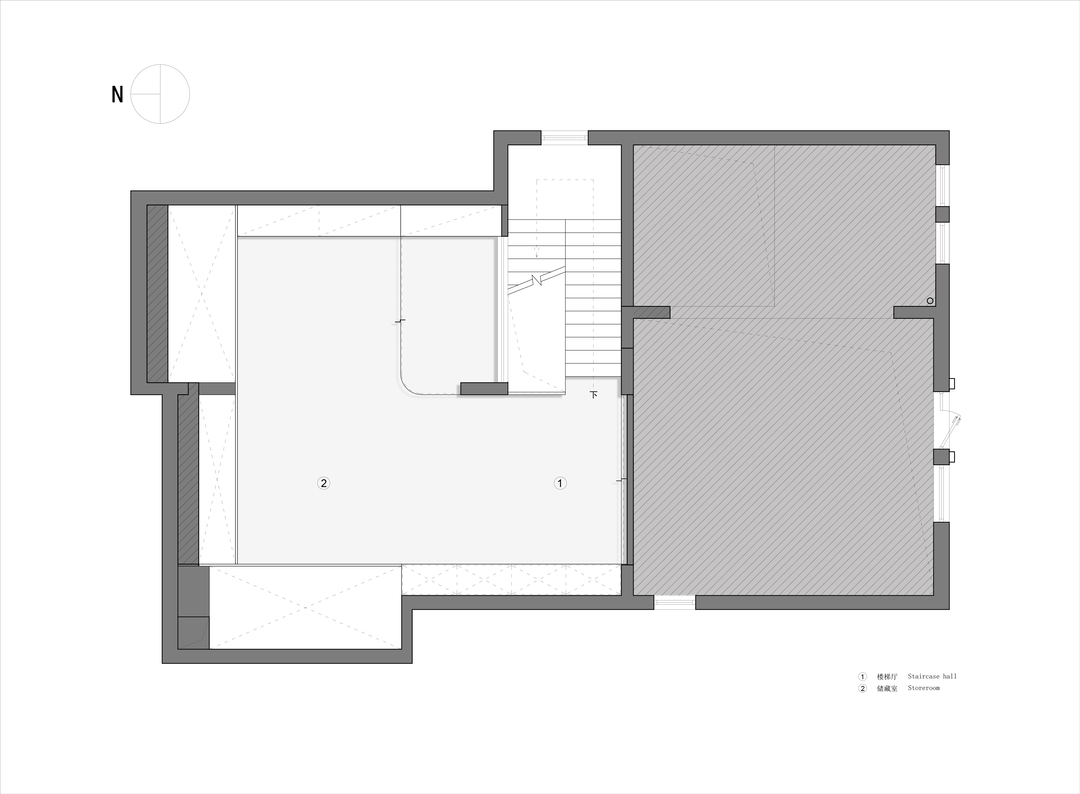
夹层
◾️改造前
一楼和二楼之间有一个夹层,被切割的较为零碎。
◾️改造前
一楼和二楼之间有一个夹层,被切割的较为零碎。

◾️改造后
一楼和二楼中间的①夹层做了②家政间和③保姆间
一楼和二楼中间的①夹层做了②家政间和③保姆间

二楼
◾️改造前
二楼有三间卧室,其中主卧带卫生间和衣帽间,外面还有一个阳台。起居室仅有一扇小窗,采光不够。
◾️改造前
二楼有三间卧室,其中主卧带卫生间和衣帽间,外面还有一个阳台。起居室仅有一扇小窗,采光不够。

◾️改造后
1⃣️二楼主卧套房集⑦衣帽间、⑩盥洗间、⑧睡眠区️、⑨书房于一体,为日常作息提供最大便捷。将⑧睡眠区缩小一部分面积给到⑦衣帽间并设置双动线;南面的窗户扩大,西面再补一扇窗,与一楼窗户对称,从建筑外观上看也会更加美观和谐;卫生间与书房位置对调后,⑨书房和⑧卧室能更好的产生连接,⑩主卫设置四分离加双台盆,用细节和材质的变化呈现出高级、细腻、优雅的气质。
2⃣️⑥次卧同样对窗户进行扩大,同时⑤次卧外浇筑了阳台结合家庭成员的情况合理摆放家具。 3⃣️楼梯口的①家庭室做了一个会客厅,同样将窗户扩大并浇筑露台,可以看到外面的风景。
1⃣️二楼主卧套房集⑦衣帽间、⑩盥洗间、⑧睡眠区️、⑨书房于一体,为日常作息提供最大便捷。将⑧睡眠区缩小一部分面积给到⑦衣帽间并设置双动线;南面的窗户扩大,西面再补一扇窗,与一楼窗户对称,从建筑外观上看也会更加美观和谐;卫生间与书房位置对调后,⑨书房和⑧卧室能更好的产生连接,⑩主卫设置四分离加双台盆,用细节和材质的变化呈现出高级、细腻、优雅的气质。
2⃣️⑥次卧同样对窗户进行扩大,同时⑤次卧外浇筑了阳台结合家庭成员的情况合理摆放家具。 3⃣️楼梯口的①家庭室做了一个会客厅,同样将窗户扩大并浇筑露台,可以看到外面的风景。

三楼
改造前
三楼是一个阁楼,做了柜子,用来收纳不常用的物品。
改造前
三楼是一个阁楼,做了柜子,用来收纳不常用的物品。

三楼改造后
· 玄关

将入户门替换成长虹玻璃材质,透光不透人。顶面做了弧形吊顶,本来顶面的高度就挺高的,没有特意压低,凸显大宅气质。

弧形顺延到侧面墙体,做了顶上灯膜,模拟自然光,搭配换鞋凳、穿衣镜和一排挑空鞋柜,满足日常出门需求。

· 客厅

将门厅内缩,扩大了客厅门洞



基于下沉式客厅从层高、光线和环境都良好的情况下顺势而为,加强光线的进入,将南面窗户扩大,西面窗户由一扇变为两扇,呈对称型条窗。

圆形吊顶呼应空间中的弧形元素,同时也是空调出风口,丰富结构层次;三种不同形态的坐具将客厅围合;


原先的四层台阶,第一踏整体延长至两边墙体,第二踏用了不同材质和颜色,以防出现踩空的情况,第四踏的大理石与过道瓷砖颜色相同无缝衔接。



书架由四个对称的拱形组成,上部分的隔板在边缘处做了圆弧处理,不易磕碰,下方的柜门高于台面5公分,能轻松开合并保持整洁的外观,隔板上摆放了屋主收藏的器物、屏风、摆件、图书等,丰富整体画面。
· 餐厅


餐厅是由次卧拆改而得,根据屋主的需求,牺牲一间次卧扩大公区面积,从而增强了采光,一整扇窗直对院外,在就餐的同时观赏窗外的景色。搭配古朴的圆桌餐椅,清雅闲适,在此品茗赏景,尽享安然。以窗为媒介,加强立面围塑性,向内斜切,带有透视性的同时框四季之景。





九幅定制画采用宫格的陈列形式,简单且更具有艺术展效果,使人停顿、散开、闲逛、凝望。图片所记录的是这个家的部分施工过程,设计结束之时,生活才刚刚开始。无论是对我们还是业主来说,每一处设计、每一个角落都是一份难忘的回忆。
· 厨房

在当下生活的行为习惯和使用中,厨房不再是一人孤军奋战的战场,狭小、拥挤、封闭,而是成为家庭互动的中心位置,中西厨加岛台的组合,从煮咖啡、烤面包,到岛台享受惬意的咖啡时光、女主人闲时的插花工作台。厨房除了承载生活中的烟火气与人情味之外,两扇窗也将光与自然引入室内,增添鲜活生机。


岛台不仅仅是增加了操作台面,两侧都做了收纳,用来放剪刀、湿纸巾、保鲜袋等常用物。

开放后的厨房拥有了两扇窗景,窗边两处水槽各司其职,有着细致的功能划分,靠近灶台的水池处理油腻的生食和餐具,靠近电器柜的则用于清洗水果、茶杯和插花;高低台面的做法同时兼顾炒菜和洗碗的舒适性。


直饮机、蒸箱、烤箱一类的厨房电器统统都收纳进了贴墙的定制橱柜里,整齐有序。


· 楼梯

把卫生间墙体内退三个台阶后,根据原有的过道按台阶高度依次拓宽,再将原先直对门厅的楼梯用屏风进行遮挡,扩大过道的同时实现了双动线,让人可以轻松去往公共区域。




采用1cm厚度的钢板,转折处以自然流畅的弧线,统一了建筑的体块感与连续性。

· 卧室


二楼主卧套房集衣帽间、盥洗间、睡眠区、书房于一体,为日常作息提供最大便捷。将睡眠区缩小一部分面积给到衣帽间并设置双动线。

南面的窗户扩大,西面再补一扇窗,与一楼窗户对称,从建筑外观上看也会更加美观和谐。






· 书房

书房明朗幽静、沉稳而不张扬,将内心的纯粹衍生进了这个空间,或许不是人人都可以拥有远方,但一定可以常伴书房。

· 卫生间

卫生间与书房位置对调后,书房和卧室能更好的产生连接,主卫设置四分离加双台盆,在简单的浴室空间里不断制造惊喜,用细节和材质的变化呈现出高级、细腻、优雅的气质。

· 起居室



起居室作为主人房的延续空间,最为重要的就是要达致“全然放空,感知当下”的氛围,兼顾舒适与自然。


屋主偏爱朴拙的家具,藤编斗柜、藤编屏风等,历久弥新的物件身上自带光辉在,不需要过多装饰,光是放在那里,便能感受到无限深意。搭配中古风的双人沙发、单人椅、地毯、吊灯等,聚合一场温朴的相会。

沙发(root&branch)、屏风(ikea)、边几(kar)





自然即在身边,布帘随风起舞,窗外景色映入眼帘,站在平台上如同置身旷野,与山水对话,只关注游走于光的世界,感受时间所带来的静谧。


· 其他



外立面偏欧式建筑,后期窗户的选择也符合空间气质,所开的窗户上下对称,保证外立面的美观性。
更多推荐
在线咨询
目录
户型图
玄关
客厅
餐厅
厨房
楼梯
卧室
书房
卫生间
起居室
其他




评论 0