与上设计|简叙,光之变奏
户型三室
面积160m²
花费50万以上
位置温州市
风格 现代、北欧、简约、自然风
前言
本案背靠市区,面朝乐清湾,在陆地与海湾线的交界中,浮游于舒朗尺度。设计充分回应一家四口的生活期许,深度考量每个家庭成员的习惯与未来成长需求,优化动线、收纳、场景之间的联系,通过减法的克制去包容细节的妥帖与关照,以纯粹的方式回应生活安逸。
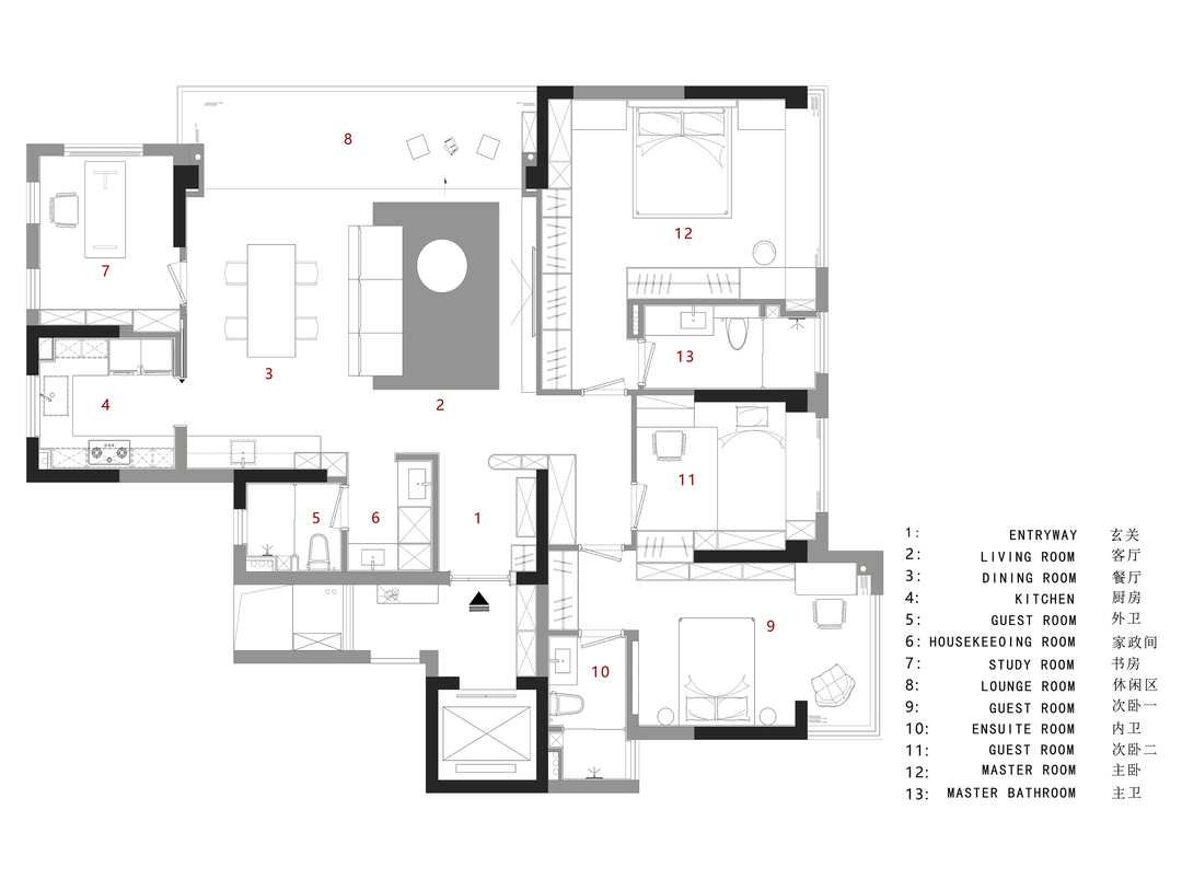
· 户型图

· 玄关

陆地、远山、波澜
渐隐于天地
渗入虚无缥缈的悠境
栖居海湾边际
俯仰万物初开时的朗阔画卷
溯源时间与自然的起始地
于清晨辉光中,静享一份神往
渐隐于天地
渗入虚无缥缈的悠境
栖居海湾边际
俯仰万物初开时的朗阔画卷
溯源时间与自然的起始地
于清晨辉光中,静享一份神往
· 客厅

01
栖居:波澜朗阔
本案背靠市区,面朝乐清湾,在陆地与海湾线的交界中,浮游于舒朗尺度。设计充分回应一家四口的生活期许,深度考量每个家庭成员的习惯与未来成长需求,优化动线、收纳、场景之间的联系,通过减法的克制去包容细节的妥帖与关照,以纯粹的方式回应生活安逸。
从白昼到黄昏,空气、光与风都将成为生活的一部分。随着空间的深入,切换远与近、宽广与细润的感官变化,打造与环境紧密互动的温雅生命力。
栖居:波澜朗阔
本案背靠市区,面朝乐清湾,在陆地与海湾线的交界中,浮游于舒朗尺度。设计充分回应一家四口的生活期许,深度考量每个家庭成员的习惯与未来成长需求,优化动线、收纳、场景之间的联系,通过减法的克制去包容细节的妥帖与关照,以纯粹的方式回应生活安逸。
从白昼到黄昏,空气、光与风都将成为生活的一部分。随着空间的深入,切换远与近、宽广与细润的感官变化,打造与环境紧密互动的温雅生命力。



客厅开放式布局沙发与餐厅区,制造双洄游的交流场,与家人共聚悠闲。三居室平行串联,同公共区形成清晰的动静分界,每个家庭成员都能拥有专属的生活情境,静辟一份独处与共享。
阳台经地面抬升,自成一片天地。墙体精细测量方格陈列,探寻室中器物与主人心性的契合度。伫于落地窗前,仿佛与自然更近一步,随时间游走、对谈,沐光之下,赋予身心无限宽广。
阳台经地面抬升,自成一片天地。墙体精细测量方格陈列,探寻室中器物与主人心性的契合度。伫于落地窗前,仿佛与自然更近一步,随时间游走、对谈,沐光之下,赋予身心无限宽广。


空间以更包容的姿态规划动线尺度,从玄关入门、动静洄游到转角过渡,经结构美学微妙叠加,构造场域之间的连贯性。原木作为流动的介质,通过材质与弧度的递进、延伸,回归其内在力量,温暖了这场诗意的连接。






02
简叙:秩序转承
餐厅与沙发互为递进的开放式关系,同步散射至厨房、书房形成更多维度的交流环境。无过多繁杂修饰,整个空间开阔明朗,界面简约流畅,构建统一的视觉延续,承载了动态的场景与生活交流。
简叙:秩序转承
餐厅与沙发互为递进的开放式关系,同步散射至厨房、书房形成更多维度的交流环境。无过多繁杂修饰,整个空间开阔明朗,界面简约流畅,构建统一的视觉延续,承载了动态的场景与生活交流。
· 餐厅


餐边柜增设水槽,辅助简单的料理与清洁功能,联动展陈架和厨余收纳系统,打造完整的吧台体系。厨房通过移门开合,建立高效流畅的操作需求,各功能区互相连贯调度,延续着长期主义的生活方式。






03
沐光:生活变奏
光,调动着空间的呼吸节奏,随场域的切换微妙递进,诠释了一场独特的美学氛围。书房位隐形门之后,在不被察觉的细节之中,打开一番探究趣味。
沐光:生活变奏
光,调动着空间的呼吸节奏,随场域的切换微妙递进,诠释了一场独特的美学氛围。书房位隐形门之后,在不被察觉的细节之中,打开一番探究趣味。





书房内保留了三处采光面,尽数吸纳明亮与生机。设计分别在两处窄窗设置了可自由开合的透气格栅与原木板,业主根据需求或打开关闭、或半遮半掩,以此调度光线的强弱,独享舒适的安全感。
原木框架置入雅黑书桌,打造安稳沉静的思想领域,与书柜构成流畅的空间界面,经得起时间与审美的沉淀。
原木框架置入雅黑书桌,打造安稳沉静的思想领域,与书柜构成流畅的空间界面,经得起时间与审美的沉淀。








原始客卫基于对生活尺度的考量,将洗手台外拓,同步延伸家政间并与之串联,释放更高效的组合形式,升级家务收纳、清洁等布局。
· 卧室

04
凝释:温润之章
动线循序入里,生活功能随之牵引将三间起居室秩序联动。静区过道布局立柜,共享大件收纳。主卧与女儿房皆为套房形式,互相让渡场域面积,确保每个空间都能享有充足的光照。
凝释:温润之章
动线循序入里,生活功能随之牵引将三间起居室秩序联动。静区过道布局立柜,共享大件收纳。主卧与女儿房皆为套房形式,互相让渡场域面积,确保每个空间都能享有充足的光照。


主卧延续舒缓主调,温暖木质与润白肌理互构联系,描摹着低纯度的空间骨架。衣柜深入业主日常习惯与需求,组合悬挂、折叠等收纳方式,根据不同季节、不同衣物等规划布局,优化衣物收纳系统。



女儿房关照内心更细腻的情感,引光入里,构建纯净的世界,为人与空间建立一场难以言喻的默契与和谐。缦纱疏影间,仿佛轻声絮语般,自由掌控舒适的节奏。






衣柜通过分散式布局,通过区域鲜明区分储存的衣物以及生活类别。独卫延续简约思路,合理利用片寸空间,调度每一个晨起与入眠的舒适体验。
小儿子房采用榻榻米组合,升级更多收纳需求,方寸间考量了未来学习与成长需要,规划书桌、衣柜,与生活互相嵌套。
小儿子房采用榻榻米组合,升级更多收纳需求,方寸间考量了未来学习与成长需要,规划书桌、衣柜,与生活互相嵌套。

扎哈·哈迪德说:“建筑是关于幸福的,它提供庇护,也提供舒适”。宁静的生活与烟波浩渺互为交织,空间将脱离形式的桎梏,在日常的漫不经心中,细致入微地叙述生活中看似寻常的事物,韵养出独属于家的印记与气息。
更多推荐
在线咨询
目录
户型图
玄关
客厅
餐厅
卧室



评论 0