M . P . D E S I G N -极简与明艳共生
户型三室
面积140m²
花费30~50万
位置西安市
风格 混搭、轻奢
前言
“极简是删繁就简的空间哲学,以利落线条与纯净底色勾勒秩序感。”本次家居设计以 “极简与明艳共生,收纳与艺术同频” 为核心理念,为幸福的一家三口量身打造兼具功能性与美学价值的居住空间。在满足大量首饰收纳需求的基础上,通过色彩碰撞、材质对比与创新设计,让每个角落都彰显独特个性。
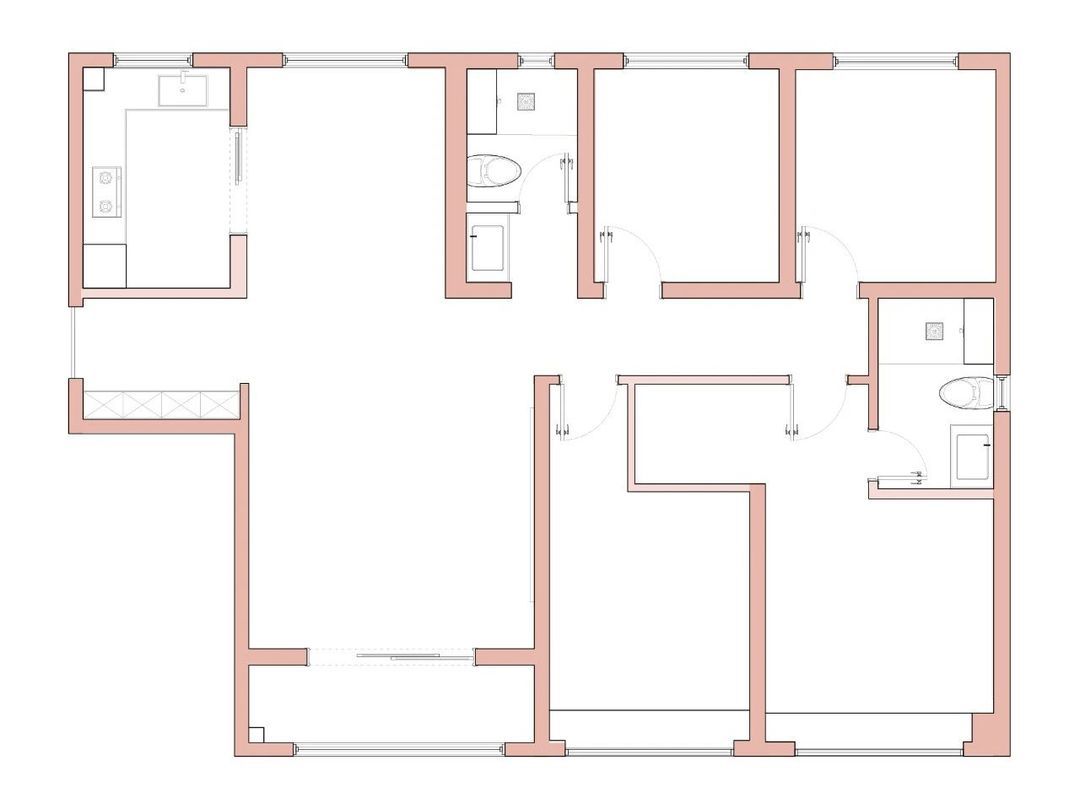
· 户型图

户型分析:
①原方案空间切割零散,缺乏清晰的功能导向。
②现有衣帽间面积局促,内部收纳结构单一,难以承载业主数量庞大、品类繁多的首饰及衣物收纳需求。
①原方案空间切割零散,缺乏清晰的功能导向。
②现有衣帽间面积局促,内部收纳结构单一,难以承载业主数量庞大、品类繁多的首饰及衣物收纳需求。

改造要点:
①将原本相邻的次卧与衣帽间非承重墙体拆除,合并为一个整体空间,重新规划为 “超大步入式衣帽间 + 灵活功能区” 的组合。
②全屋采用 “动静分区” 原则,公共活动区域(客厅、餐厅、厨房)集中于入户一侧,形成开放互动的核心空间;主卧、儿童房与新改造的三室空间位于内侧,确保安静私密的休息环境。
①将原本相邻的次卧与衣帽间非承重墙体拆除,合并为一个整体空间,重新规划为 “超大步入式衣帽间 + 灵活功能区” 的组合。
②全屋采用 “动静分区” 原则,公共活动区域(客厅、餐厅、厨房)集中于入户一侧,形成开放互动的核心空间;主卧、儿童房与新改造的三室空间位于内侧,确保安静私密的休息环境。

家庭动线:
本次设计通过对空间、色彩、收纳、材质等多维度的精心规划,实现了极简风格与鲜艳色彩的平衡,打造出一个功能强大、设计感十足且充满生活温度的家,为一家三口的幸福生活提供理想的空间载体。
本次设计通过对空间、色彩、收纳、材质等多维度的精心规划,实现了极简风格与鲜艳色彩的平衡,打造出一个功能强大、设计感十足且充满生活温度的家,为一家三口的幸福生活提供理想的空间载体。
· 客厅


沙发背景墙采用大尺寸彩色装饰画,
画作以抽象艺术风格呈现,
运用高饱和度的红、蓝、黄等色彩,
通过大胆的笔触与色块碰撞,
成为空间的视觉焦点。
在沙发组合的一侧角落,
放置一盏蓝色羽毛落地灯,
光线透过羽毛间隙柔和地散射出,
营造出浪漫、梦幻的氛围。
蓝色羽毛落地灯不仅作为局部照明使用,
其独特的造型与色彩也成为空间中的艺术装置,
与彩色装饰画中的蓝色调相呼应
增强空间的整体协调性。
画作以抽象艺术风格呈现,
运用高饱和度的红、蓝、黄等色彩,
通过大胆的笔触与色块碰撞,
成为空间的视觉焦点。
在沙发组合的一侧角落,
放置一盏蓝色羽毛落地灯,
光线透过羽毛间隙柔和地散射出,
营造出浪漫、梦幻的氛围。
蓝色羽毛落地灯不仅作为局部照明使用,
其独特的造型与色彩也成为空间中的艺术装置,
与彩色装饰画中的蓝色调相呼应
增强空间的整体协调性。


选用造型独特的米白色贝壳沙发作为主沙发,
其流畅的曲线造型宛如贝壳般优雅,
与背景墙形成柔和的呼应。
米白色作为基础色调,
既能平衡彩色装饰画的浓烈色彩,
又为空间带来温馨、柔和的氛围。
搭配一张红色毛毛虫沙发作为单人位,
其圆润饱满的造型与贝壳沙发形成对比,
活泼的红色为空间注入热情与活力。
鲜艳的色彩在视觉上极具冲击力,
成为空间中的点睛之笔。
其流畅的曲线造型宛如贝壳般优雅,
与背景墙形成柔和的呼应。
米白色作为基础色调,
既能平衡彩色装饰画的浓烈色彩,
又为空间带来温馨、柔和的氛围。
搭配一张红色毛毛虫沙发作为单人位,
其圆润饱满的造型与贝壳沙发形成对比,
活泼的红色为空间注入热情与活力。
鲜艳的色彩在视觉上极具冲击力,
成为空间中的点睛之笔。
· 餐厅



餐厅中央位置悬挂一幅大尺寸蓝色渐变装饰画,
画作以由深至浅的蓝色调为主,
通过细腻的色彩过渡与抽象笔触,
营造出深邃、梦幻的视觉效果,
成为餐厅的视觉核心。
在装饰画上方安装线性灯,
灯带以柔和的光线自上而下打亮画作,
突出画面的色彩层次与质感,
使其在夜间也能成为空间的焦点。
选用一张异形餐桌作为餐厅的中心家具。
餐桌造型打破传统矩形或圆形的常规设计,
采用不规则的几何形状,
边缘线条流畅且富有动感。
搭配红蓝两色餐椅围绕异形餐桌摆放,
餐椅造型与餐桌风格相呼应,
采用流线型设计,椅背贴合人体曲线。
红色鲜艳热烈,蓝色沉稳深邃,
两种色彩碰撞形成强烈的视觉对比,
同时又与装饰画、客厅的色彩元素相呼应,
增强空间的整体协调性。
画作以由深至浅的蓝色调为主,
通过细腻的色彩过渡与抽象笔触,
营造出深邃、梦幻的视觉效果,
成为餐厅的视觉核心。
在装饰画上方安装线性灯,
灯带以柔和的光线自上而下打亮画作,
突出画面的色彩层次与质感,
使其在夜间也能成为空间的焦点。
选用一张异形餐桌作为餐厅的中心家具。
餐桌造型打破传统矩形或圆形的常规设计,
采用不规则的几何形状,
边缘线条流畅且富有动感。
搭配红蓝两色餐椅围绕异形餐桌摆放,
餐椅造型与餐桌风格相呼应,
采用流线型设计,椅背贴合人体曲线。
红色鲜艳热烈,蓝色沉稳深邃,
两种色彩碰撞形成强烈的视觉对比,
同时又与装饰画、客厅的色彩元素相呼应,
增强空间的整体协调性。
· 卧室


在延续全屋设计基调的基础上,
主卧融入银色圆形金属装饰,
呈现出独特的金属光泽与纹理。
床头柜银色镜面材质,
表面光滑如镜,
反射周围环境,
增加空间的通透感与时尚感。
通过材质碰撞与细节设计,
打造一个既充满现代时尚感,
又不失温馨舒适的私密休憩空间,
满足业主对高品质睡眠环境与个性化审美的追求。
主卧融入银色圆形金属装饰,
呈现出独特的金属光泽与纹理。
床头柜银色镜面材质,
表面光滑如镜,
反射周围环境,
增加空间的通透感与时尚感。
通过材质碰撞与细节设计,
打造一个既充满现代时尚感,
又不失温馨舒适的私密休憩空间,
满足业主对高品质睡眠环境与个性化审美的追求。
· 儿童房


为延续全屋鲜明的色彩风格,
同时契合孩子成长需求,
儿童房也以红色系为主色调。
儿童房采用动静分区布局,
休息区与学习娱乐区分隔明确。
学习桌整体造型模仿钢琴的样式,
搭配一把红色的儿童学习椅,
椅子采用人体工学设计,
椅背贴合孩子的脊柱曲线,
提供良好的支撑,
确保孩子坐姿端正。
将学习、休息、娱乐功能有机融合,
既满足孩子的日常需求,
又以鲜明的色彩与创意设计激发孩子的想象力与创造力,
同时契合孩子成长需求,
儿童房也以红色系为主色调。
儿童房采用动静分区布局,
休息区与学习娱乐区分隔明确。
学习桌整体造型模仿钢琴的样式,
搭配一把红色的儿童学习椅,
椅子采用人体工学设计,
椅背贴合孩子的脊柱曲线,
提供良好的支撑,
确保孩子坐姿端正。
将学习、休息、娱乐功能有机融合,
既满足孩子的日常需求,
又以鲜明的色彩与创意设计激发孩子的想象力与创造力,
· 衣帽间


在衣帽间中央天花板位置,
悬挂一盏大型流苏灯作为主灯,
成为空间中的视觉焦点。
灯光透过流苏间隙,
柔和地洒落在衣帽间内,
形成斑驳光影,
营造出浪漫且神秘的氛围。
将衣帽间中间区域设置为独立的首饰收纳柜,
采用开放式与封闭式结合的设计。
柜体底部为封闭式抽屉,
顶部为玻璃展示柜,搭配内部灯带,
既保证首饰清晰可见,又增添轻奢质感。
悬挂一盏大型流苏灯作为主灯,
成为空间中的视觉焦点。
灯光透过流苏间隙,
柔和地洒落在衣帽间内,
形成斑驳光影,
营造出浪漫且神秘的氛围。
将衣帽间中间区域设置为独立的首饰收纳柜,
采用开放式与封闭式结合的设计。
柜体底部为封闭式抽屉,
顶部为玻璃展示柜,搭配内部灯带,
既保证首饰清晰可见,又增添轻奢质感。
更多推荐
在线咨询
目录
户型图
客厅
餐厅
卧室
儿童房
衣帽间



评论 0