黑色法式复古 | 老钱 | 有品位的家
户型两室
面积90m²
花费30~50万
位置天津市
风格 法式
前言
黑色法式风格是法式风格的一个独特分支,它融合了法式设计的优雅、浪漫与黑色的神秘、高贵,形成了一种既经典又时尚的装饰风格;
设计元素
基础造型:以现代法式为基础,搭配进口艺术漆、金属饰面板、烤漆类固定家具黑色棋格地板和天然石材等,定义复古法式风格;
色彩运用:以黑色为主色调,搭配白色、暗红色、蓝色和金色等颜色,营造低调奢华的氛围;
家具选择:选用带有金属圆柱的移动家具,如藏蓝色绒面沙发、金属玻璃茶几等,展现精湛工艺;
软装搭配:使用蕾丝白色纱帘、天鹅绒抱枕、复古挂画等元素,增添浪漫气息;
风格特点
优雅与神秘:黑色赋予法式风格更多的神秘感,同时保持其固有的优雅舒适的内在气质;
经典与现代:将传统法式元素与现代设计理念相结合,既复古优雅又时尚前卫;
高贵与奢华:黑色调凸显高贵气质,金色装饰增添奢华感;
设计元素
基础造型:以现代法式为基础,搭配进口艺术漆、金属饰面板、烤漆类固定家具黑色棋格地板和天然石材等,定义复古法式风格;
色彩运用:以黑色为主色调,搭配白色、暗红色、蓝色和金色等颜色,营造低调奢华的氛围;
家具选择:选用带有金属圆柱的移动家具,如藏蓝色绒面沙发、金属玻璃茶几等,展现精湛工艺;
软装搭配:使用蕾丝白色纱帘、天鹅绒抱枕、复古挂画等元素,增添浪漫气息;
风格特点
优雅与神秘:黑色赋予法式风格更多的神秘感,同时保持其固有的优雅舒适的内在气质;
经典与现代:将传统法式元素与现代设计理念相结合,既复古优雅又时尚前卫;
高贵与奢华:黑色调凸显高贵气质,金色装饰增添奢华感;
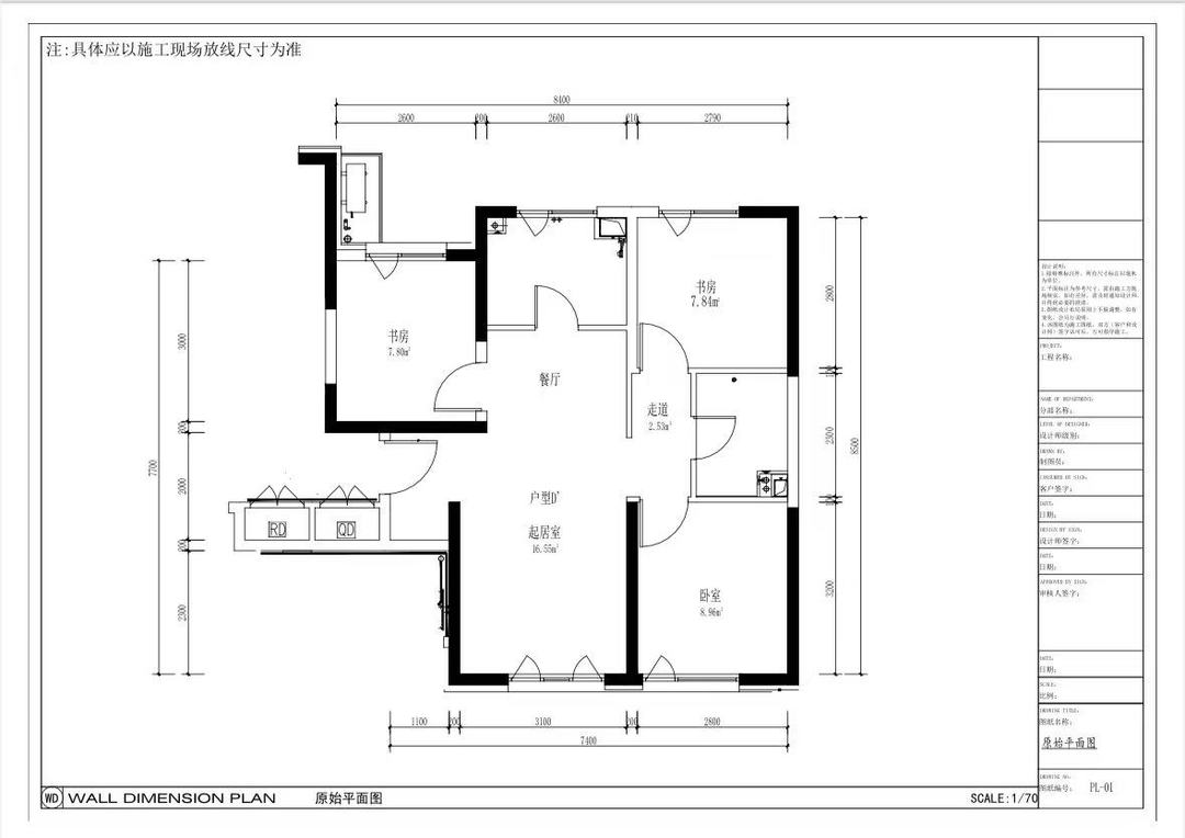
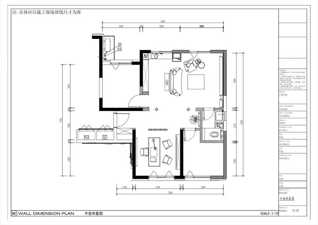
· 户型图

原始户型为三居室

作为工作室,所以将三室改为两室,南向因承重墙,所以利用厨房和次卧改成多功能汇报厅。卫生间则向主卧扩张,而原有两件卧室则改成员工办公室;
· 玄关

玄关柜配合智能灯光,感应灯光可在入户时自动亮起;

作为工作室,入户走廊”连接的是主理人办公室,走廊隔墙使用天然贝母石配合黑色铁艺棋格框架制作,走廊侧墙使用法式风格的墙面装饰配合进口艺术漆打造风格定义,地面使用天然大理石增加整体空间的质感,搭配顶棚镜面可增大空间尺度,缔造低调奢华;

站在走廊里透视办公室的一角,带给人们沉稳、内敛的感觉。

走廊尽头选用敦煌印象岩板,由HBI意大利研发中心设计师携手清华美院资深教授,博士生导师,中国当代注明陶艺设计家共同开发的;
· 客厅

作为主要的方案汇报厅,提供了舒适的沙发座椅,和巨幕电视。背景墙选用白色烤漆的造型版搭配金色做旧的饰面板烘托出完美的视觉效果;

红色艺术漆选用威罗旗下意大利进口品牌MAX Meyer迪奥拉系列产品,迪奥红;
· 厨房

由于是做工作室所以取缔了厨房功能,改成全开放西厨,黑色烤漆质感彰显无疑;

西厨背景选用灰色进口岩板,调和黑色橱柜,展现出相得益彰的效果;
· 书房

书柜选用铝板结合对拉式烤漆门板,暗藏灯带,使两种不同的材质相互结合,顶面白色艺术漆选用威罗旗下意大利进口品牌MAX Meyer迪奥拉系列产品迪奥白,手工搓花配合星空顶,让夜间更为出彩。

墙面选用金属做旧效果的饰面板配合两侧皮革质感的编制纹理造型,结合酒红色的单椅和黑色办公桌,使整体空间更加的沉稳、内敛而不失奢华与高级;

双层窗帘暗藏的灯光效果配合顶棚的星空使夜间氛围感更佳;
· 其他

白天是工作室,夜晚通过灯光的调整秒变竞技室,一个场景带来双重感受的设计,让人眼前一亮;

夜晚柜体冷色调灯带配合星空顶,给整个空间带来更多无限遐想;

每当夜幕来临,室内的整体环境通过灯光的渲染会使得主人更加放松,并且可以很好的提供安全感,让紧张一天的神经得以缓解;
更多推荐
在线咨询
目录
户型图
玄关
客厅
厨房
书房
其他



评论 0