南昌阿鹤设计 | 500m²极简别墅,定格理想栖居!
户型别墅
面积500m²
花费50万以上
位置南昌市
风格 现代、简约、现代简约
前言
现代极简绝非冰冷的形式堆砌,而是生活方式的具象化表达。本案业主,钟情简洁利落的空间气质。设计师充分考量业主一家的生活需求,将500m²别墅空间进行了有效的改造,最终还原出一个松弛自然且适合业主气质的理想之家。
本案设计围绕“沉稳、极简、高效”的主旋律,在细节中恰到好处的体现了业主的品味与追求。客餐厨及棋牌室、影音室空间作为家庭主要交流互动的活动公区,整个开放式设计让公共区域更为通透自由,极大程度的促进了家庭成员之间的无碍交流。卧室区域则多是休憩的私人场域,独立空间互不影响,充分体现了家庭式私人场域的爱与和谐。
本案设计围绕“沉稳、极简、高效”的主旋律,在细节中恰到好处的体现了业主的品味与追求。客餐厨及棋牌室、影音室空间作为家庭主要交流互动的活动公区,整个开放式设计让公共区域更为通透自由,极大程度的促进了家庭成员之间的无碍交流。卧室区域则多是休憩的私人场域,独立空间互不影响,充分体现了家庭式私人场域的爱与和谐。
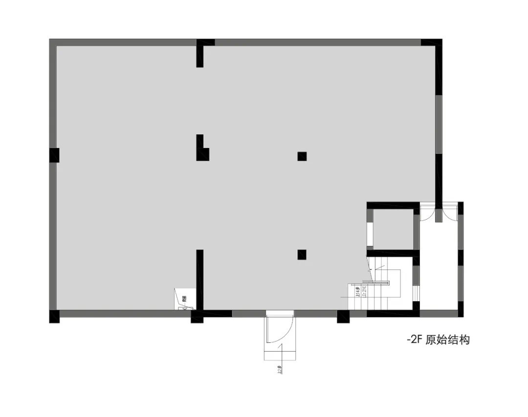
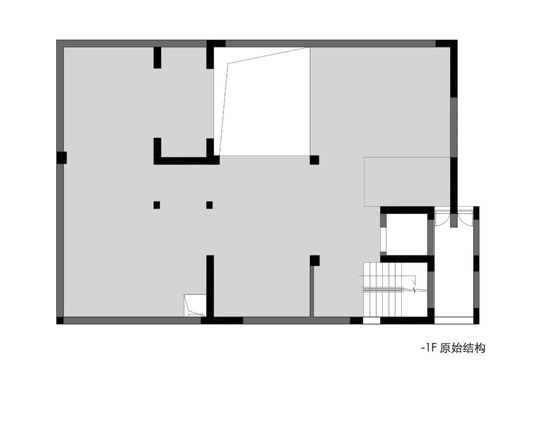
· 户型图






别墅设计最重要的是空间规划,我们对每一层的用途和布局重新做了梳理。
-2F:休闲客厅、棋牌室、影音室、储物间、卫生间
-1F:厨房、餐厅、洗衣房、保姆房、卫生间
1F:客厅、家庭室、健身区、父母房、卫生间
2F:儿童房1、儿童房2、卫生间、女儿套房
3F:主卧套房
-2F:休闲客厅、棋牌室、影音室、储物间、卫生间
-1F:厨房、餐厅、洗衣房、保姆房、卫生间
1F:客厅、家庭室、健身区、父母房、卫生间
2F:儿童房1、儿童房2、卫生间、女儿套房
3F:主卧套房
· 玄关




沉稳黑色螺旋楼梯宛如艺术杰作,楼梯踏步下方安装了灯带,这简直是整个楼梯的点睛之笔,暖黄色灯光亮起,柔和又温馨,不仅提升了空间的氛围感,还起到了夜间照明的作用,安全又浪漫。
· 客厅




休闲客厅区域布局上,连贯的空间设计消弭边界,让自然光与空气在通过挑空框架中自由穿梭,更能打开人们心扉。理性的线条与温暖的氛围并存,让家不只是居住空间,更承载着生活的点滴记忆。



棋牌空间紧邻休闲客厅,通过客厅展示柜,形成“隔而不断”的视觉连贯性。与客厅功能上相互独立,形式上又和谐统一,整个空间闲适之中充满着豁达人生之趣。天窗引入自然光,提升空间通透感与层次感。这些细节设计,让居住者不断收获新的惊喜。
· 厨房



中岛台与主餐区形成功能互补,高脚椅成为晨间咖啡、深夜小酌的闲适据点,烟火气与设计感在此共生。灶台氤氲的热气里,藏着家的密码,是时间写给味蕾的情书,是对饕餮盛宴的温柔谢幕。
· 餐厅


餐厨设计独具匠心,西厨采用嵌入式厨电与双餐厅配置。一个西厨处理日常饮食,另一个餐厅应对聚会需求,灵动的布局让空间利用更加高效,适配不同生活场景。
· 影音室



电竞区配备专业电竞椅,灯光暗下,屏幕亮起,瞬间开启热血战斗模式,成为游戏迷的天堂。影音区超大屏幕,搭配恰到好处的灯光,在家就能享受影院级视听盛宴。
· 一楼客厅



空间采用开放式动线,虽有视觉分隔,整体扔保持连贯流动。家具精简,每件家具都精心挑选,成为传递空间情绪的载体。多材质交融赋予空间趣味,几何形体与弧形柱构建层次,让简约空间有视觉张力。


几何元素贯穿全屋,从家具到装饰,处处皆是设计巧思。理性的线条与温暖的氛围并存,让家不只是居住空间,更承载着生活点滴记忆。




主卧室采用开放式布局,让卧室、衣帽间和卫生间形成一个流畅动线。这样的设计不仅增加了空间的通透感,还让男女主人不同区域之间的互动更加方便,当有需要独立完成办公、化妆等行为思考时,可以形成对话,增强互动且互不干扰。


卧室墙面舒适洁净的自然色搭配胡桃木定制柜体,
形成了层次感。定制护墙板和床头柜体自然相连,减少了视觉冗余,释放了更多活动空间。灯光设计上,我们采用了多层次的照明方案,主灯提供整体照明,而灯带负责氛围。
形成了层次感。定制护墙板和床头柜体自然相连,减少了视觉冗余,释放了更多活动空间。灯光设计上,我们采用了多层次的照明方案,主灯提供整体照明,而灯带负责氛围。

卧室整体色调以米白为主,搭配了一些深色的家具和饰品,填补自然而然的生活。窗帘褶皱里藏着生活的小惊喜,拉开是朝阳,闭合是月光。整体设计兼顾孩子的日常学习等生活习惯,打造出一个松弛有度的休憩场域。
更多推荐
在线咨询
目录
户型图
玄关
客厅
厨房
餐厅
影音室
一楼客厅



评论 0