今朝风日好设计 | 230㎡江景大平层,情绪与秩序的温柔栖居
户型四室
面积230m²
花费50万以上
位置广州市
风格 现代、轻奢、中古
前言
这是一处坐落在江畔的230㎡住宅,是一对从事服装行业的夫妻为自己与家人打造的理想栖居地。他们对美的敏锐与对生活的热爱,在这个家中悄然生长。我们试图构筑的不只是一个居所,而是一个既兼顾功能与情感,又有日常与仪式的空间。
临江的自然风光为空间注入了开阔的视野与流动的气息。屋主偏爱通透、开放的空间感,我们选择“减法”作为设计路径 —弱化硬装的存在感,通过客餐厅一体化的布局,以及充足的隐藏式收纳系统,营造出简洁克制、自由呼吸的空间基础。
隐藏的,不只是收纳,还有空间之间的界限。无框门、内嵌电视与系统化收纳,让秩序感自然地融入日常。
临江的自然风光为空间注入了开阔的视野与流动的气息。屋主偏爱通透、开放的空间感,我们选择“减法”作为设计路径 —弱化硬装的存在感,通过客餐厅一体化的布局,以及充足的隐藏式收纳系统,营造出简洁克制、自由呼吸的空间基础。
隐藏的,不只是收纳,还有空间之间的界限。无框门、内嵌电视与系统化收纳,让秩序感自然地融入日常。
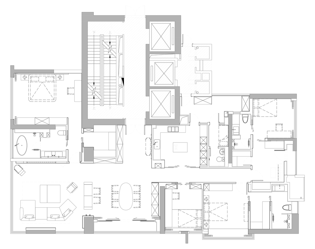
· 户型图

· 客厅

壁灯来自SINGCHAN,落地灯来自FLos,沙发、扶手椅和茶几均来自Cassina。

以温润克制的硬装作为基底,让软装自然成为空间中的情绪表达。从大理石餐桌、弧线沙发,到一只杯、一缕香,软装无需张扬,却在细节中不动声色地渗透着家的温度与节奏。




· 厨房

· 餐厅




· 卫生间


· 卧室

· 儿童房

· 其他

桑拿房
更多推荐
在线咨询
目录
户型图
客厅
厨房
餐厅
卫生间
卧室
儿童房
其他



评论 0