386㎡摩登艺家,一家四口的电影感叠墅
户型别墅
面积386m²
花费20~30万
位置长沙市
风格 混搭
前言
家不仅是最佳居所,也可以是回忆的载体。这是一个承载过去与未来的家,业主的海外岁月,宛如一幅绚丽多彩的艺术画卷,其间的点滴经历,为这套叠墅注入审美沉淀。优雅,海派,摩登是我们给这个家的关键词,像个飘洋过海,我们送给屋主的礼物。
在本案中,家庭成员共有四人。当我们把目光投向这座面积达 368㎡的叠墅时,不难发现,如此宽敞的空间在功能规划方面,无疑是不会受到丝毫拘束的。那么,怎样的设计才能让这个空间在视觉上更显开阔大气呢?又如何使空间设计与屋主的社交活动以及生活习惯完美契合呢?这两个问题,成为了此次设计的核心出发点。
基于屋主的需求,我们精心构思,决定将负层空间着力打造成一个充满活力的社交主场。这里将承载着屋主与亲朋好友欢聚一堂、谈天说地的欢乐时光,每一寸空间都将洋溢着热情与互动的氛围。而地上空间,则是属于屋主一家四口的私享天地,是他们在繁忙生活中回归宁静、享受家庭温馨的避风港。
整个空间的设计风格,我们选定为独具魅力的法式中国风。在材质的运用上,整体硬装部分挑选了带有独特造型的材料,这些材料宛如艺术的基石,为空间奠定了高雅的格调。同时,再辅以高品质的软装,从精美的家具到细腻的织物,每一个细节都彰显着品质与格调。它们相互映衬,共同打造了一个摩登艺家,让每一个踏入其中的人都能感受到那份独特的魅力与温馨。
在本案中,家庭成员共有四人。当我们把目光投向这座面积达 368㎡的叠墅时,不难发现,如此宽敞的空间在功能规划方面,无疑是不会受到丝毫拘束的。那么,怎样的设计才能让这个空间在视觉上更显开阔大气呢?又如何使空间设计与屋主的社交活动以及生活习惯完美契合呢?这两个问题,成为了此次设计的核心出发点。
基于屋主的需求,我们精心构思,决定将负层空间着力打造成一个充满活力的社交主场。这里将承载着屋主与亲朋好友欢聚一堂、谈天说地的欢乐时光,每一寸空间都将洋溢着热情与互动的氛围。而地上空间,则是属于屋主一家四口的私享天地,是他们在繁忙生活中回归宁静、享受家庭温馨的避风港。
整个空间的设计风格,我们选定为独具魅力的法式中国风。在材质的运用上,整体硬装部分挑选了带有独特造型的材料,这些材料宛如艺术的基石,为空间奠定了高雅的格调。同时,再辅以高品质的软装,从精美的家具到细腻的织物,每一个细节都彰显着品质与格调。它们相互映衬,共同打造了一个摩登艺家,让每一个踏入其中的人都能感受到那份独特的魅力与温馨。
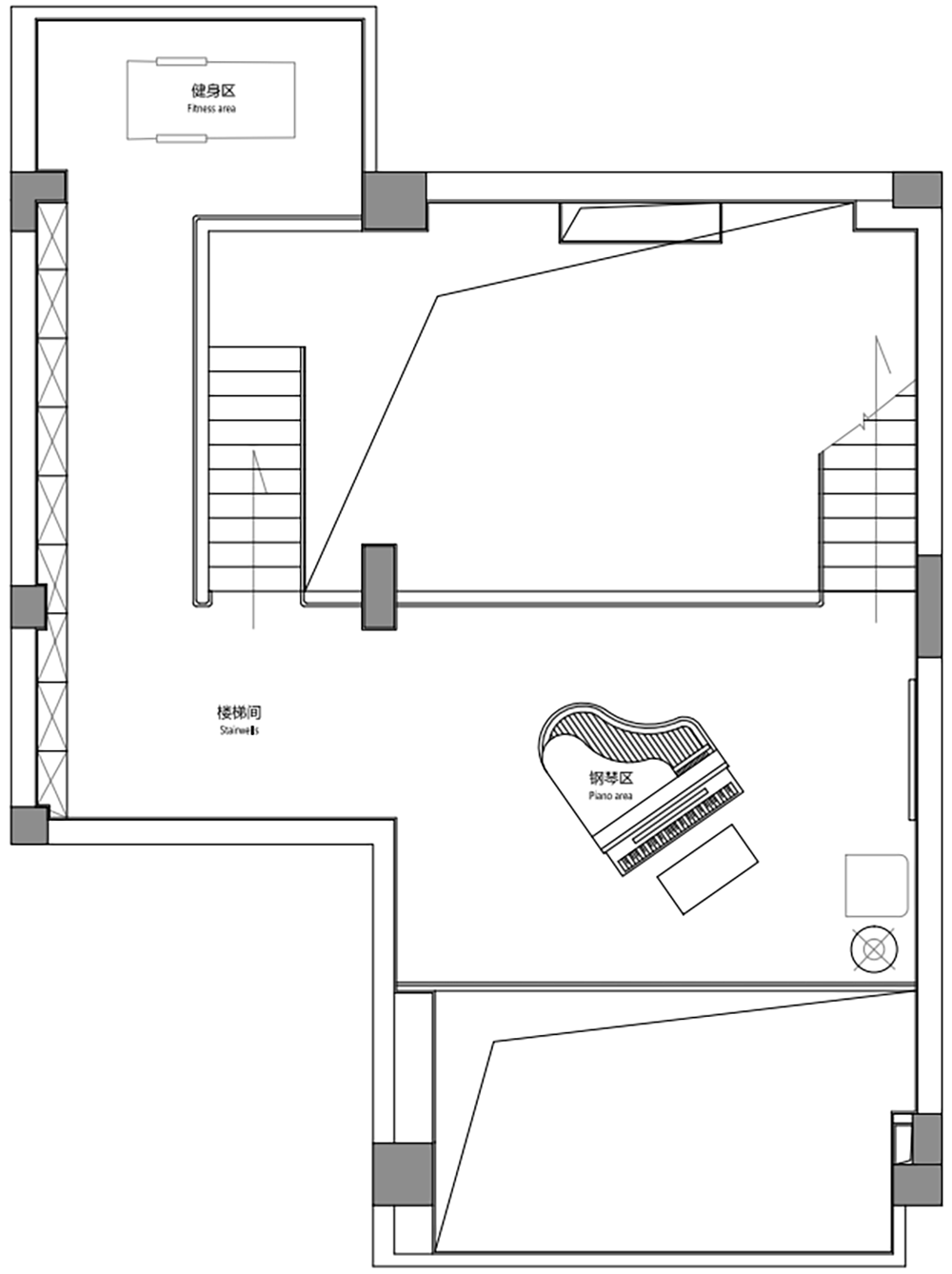
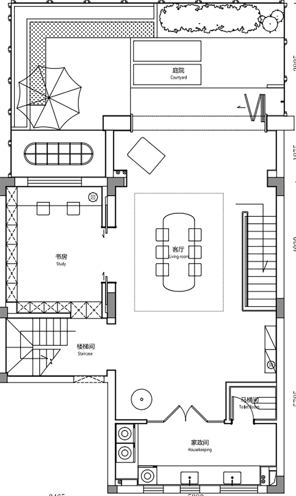
· 户型图

负二层平面图

负一层平面图

一层平面图

二层平面图
· 客厅

在初次交谈中,屋主就表示家里需要一个在家庭起居之外的社交空间,希望这个空间安静又自由,因此设计师将会客厅设计在了地下负二楼,从停车场能便捷地进入,与楼上的私密空间互不打扰。


挑空客厅以真火壁炉为中心展开,壁炉线条简洁而优雅,洞石材质的肌理隽永细腻,当炉火静静燃烧,没有过多的喧嚣,只有一份宁静与典雅在空气中流淌,让人的心灵得到放松和舒缓。



客厅看餐厅视角
· 餐厅

踏入餐厨空间,宝格丽石宛如神秘画卷悠然铺开。在白色基底上,黑色纹理似梦的河流蜿蜒,黑色脉络如岁月的笔触勾勒山川。仿佛一场艺术展览启幕。每一道纹路都藏着故事,在光影交错间低语。


连接客餐的中央岛台也是厨房的焦点,不仅提供了额外的操作空间,还可以作为早餐吧台或社交区域,理解的梦中情厨,是可以让下厨不再是种家务,而是一种享受,也许这个厨房做到了。
· 厨房

· 负一层

巧妙利用层高搭板,将整个地下空间设计成两层。通过分析人体工程学,我们只在餐厅区进行,让客厅与厨房拥有开阔的挑高空间,不显压抑的同时也有更多空间满足屋主需求。

在这个空岛上,利用钢琴作为地上与地下的连接,有种进入宫崎骏电影之感。为了提供便利性,根据屋主小孩喜爱乐高的兴趣,我们将乐高收纳柜与钢琴摆在一块,打造一个专属游乐园。

作为地下与地上的中轴层,我们想通过钢琴营造一种仪式感,让每一个音符都成为开启舒适生活的钥匙。黑白相间的键盘,仿佛是连接两个世界的通道,地下的社交主场与地上的安静祥和在乐声中交织、对话。

为了增加地下采光,我们开了个天窗,在天窗下方设计了个读书角,希望在这个安静的环境里能够静静的享受阅读的快乐。
· 一层客厅



屋主的小孩正是蹦蹦跳跳、随意打闹的年纪,在二层我们设计了云梯,为家庭生活带来了更多的趣味性。孩子们可以把它当作一个有趣的游乐设施,在上面攀爬玩耍,增添了家庭的欢
乐氛围。
乐氛围。


有年代感的物件总是让人能品味过去时光的回忆。老式柜体与金属感椅子让空间无形中展现出折中主义的美感。在这个空间里组合成一幅文艺典雅的画卷,让人感受到岁月沉淀后的魅力。


地上一层作为一个衔接地下空间和二楼私密空间的家庭共处区域,这里糅合了女主人国外生活的记忆,以及婚后育儿生活的新需求。古董柜里是女主人喜欢的复古餐具,拱形门洞+法式璧灯,除了好看,也是女主人很喜欢的好用空间,超大长桌可以让一家人一起看书做手工。
· 书房


书房没有过多设计来修饰,有的只是一个书房该有的。整墙柜体给予充足的书籍收纳区。靠墙而建的书桌也让学习、阅读时更加顺心,舒适,随时随地享受阳光。



· 阳台


打开通往院子的折叠门,完成室内室外的亲密互动,是女主人理想的院子,也是孩子们的乐园。享受,舒适,在庭院中布置有舒适的户外沙发,摆放着餐桌和遮阳伞,可以在这里放松身心,沉浸在自己的小世界里。
· 卧室


屋主的留学经历,让我们把英伦风带到了主卧。在空间布局上,没有过多冗杂的设计,延续公区风格,摩登法式让空间更有空间感和流畅性,让空间显得更加宽敞明亮。

而摩登感与复古钢窗的结合,营造出一种既时尚又复古的氛围感,仿佛置身于浪漫的法国电影中,享受着优雅与复古的完美结合。


为了强调空间的整体性,进入卫生间需要穿过隐形门,让它像个隐藏彩蛋,创造出一种简洁、流畅的视觉效果。空间虽然面积不大,但非常精致,推门从镜子里看复古窗景也是一种享受。
· 儿童房


在二层为双胞胎打造了一个充满法式和童趣的卧室,而在另一间房暂时作为多功能房使用,为以后孩子打了后分房预留空间,现在则是他们的游戏房。




屋主的小孩正是蹦蹦跳跳,随意打闹的年纪,在二层我们设计了云梯,为家庭生活带来了更多的趣味性。孩子们可以把它当作一个有趣的游乐设施,在上面攀爬玩耍,增添了家庭的欢乐氛围。
· 卫生间


卫生间采用三分离式设计,让日常使用效率得到提高。而在这个空间中的点睛之笔就是洞石+马赛克砖台盆,空间瞬间变得更有艺术感。而与金属的搭配也让视觉上越发轻盈。
更多推荐
在线咨询
目录
户型图
客厅
餐厅
厨房
负一层
一层客厅
书房
阳台
卧室
儿童房
卫生间



评论 0